Nowoczesna perełka projektowa z poddaszem w stylu nowoczesnym- projekt domu W-27
Projekt domu W-27 to nowoczesny i funkcjonalny dom jednorodzinny z poddaszem użytkowym. Dom o powierzchni użytkowej 120 m² został zaprojektowany w konstrukcji szkieletowej, co zapewnia mu lekkość, energooszczędność i trwałość.
Elewacja domu W-27 jest prosta i elegancka. Wykonano ją z drewna i ciemnego tynku, co nadaje jej nowoczesny wygląd. Dom jest dwukondygnacyjny, z garażem na dwa samochody.
Funkcjonalnośc domu
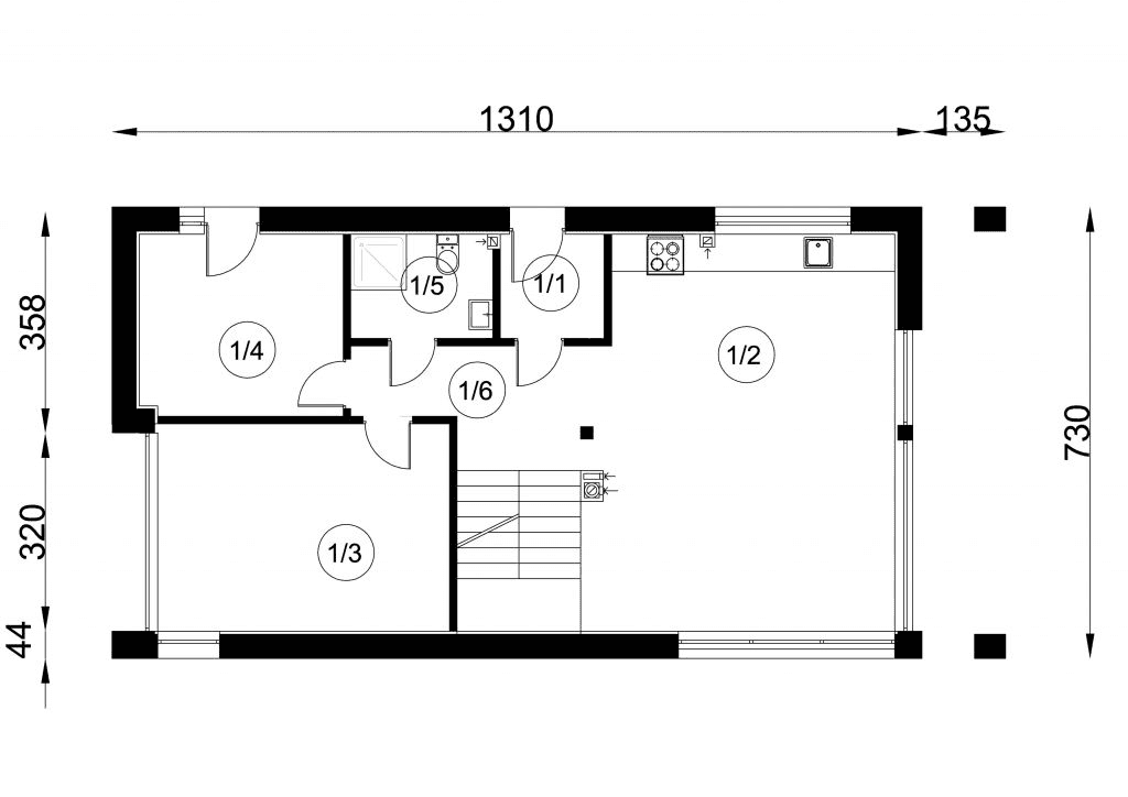
- Na parterze domu znajduje się przestronna część dzienna z salonem, jadalnią i kuchnią. Salon jest połączony z kuchnią, dzięki czemu można stworzyć jedno duże, otwarte pomieszczenie. Salon posiada antresolę, która może być wykorzystana jako miejsce do relaksu lub pracy.
- W strefie dziennej znajduje się również gabinet, który może pełnić funkcję pokoju gościnnego lub biura. Gabinet jest połączony z wiatrołapem, dzięki czemu można wygodnie wnosić i wynosić meble oraz sprzęt.
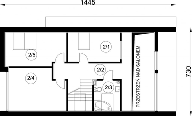
- Na poddaszu znajdują się trzy sypialnie, dwie łazienki i garderoba. Sypialnie są duże i przestronne, z dużymi oknami, zapewniającymi dostęp do naturalnego światła. Łazienki są funkcjonalne i wyposażone w niezbędne urządzenia sanitarne. Garderoba zapewnia miejsce do przechowywania ubrań i dodatków.
Dom W-27 to doskonała propozycja dla osób, które szukają nowoczesnego i funkcjonalnego domu jednorodzinnego z poddaszem użytkowym. Dom jest energooszczędny, trwały i łatwy w utrzymaniu.
Oto kilka dodatkowych informacji o projekcie domu W-27:
Dom został zaprojektowany w technologii szkieletowej. Technologia ta jest lekka i energooszczędna.
Dom jest wyposażony w ogrzewanie podłogowe. Ogrzewanie podłogowe zapewnia komfort cieplny i wygodę użytkowania.
Dom jest wyposażony w kominek. Kominek zapewnia ciepło i przytulny klimat w salonie.
Jeśli szukasz nowoczesnego i funkcjonalnego domu jednorodzinnego z poddaszem użytkowym, to projekt W-27 jest doskonałą propozycją dla Ciebie.
Budowa domu
Jeśli jesteś zainteresowany budową domu W-27 z nasze j oferty, serdecznie zapraszamy do kontaktu. Pozostaw swój adres e-mail na budowa@wybieramprojekt.pl, a my przygotujemy dla Ciebie bezpłatną wycenę kosztów realizacji projektu. Twój wymarzony dom jest teraz bardziej dostępny niż kiedykolwiek wcześniej
autor projektu: Marcin Macieszko





















