Projekt domu A-51: Harmonia Nowoczesnego Designu z Funkcjonalnością
Dom A-51 to wyjątkowy projekt, który łączy nowoczesny design z funkcjonalnością. Ta harmonijna bryła budynku skrywa w sobie wiele pomieszczeń, stwarzając idealne miejsce do życia dla każdej rodziny. Oto pełny opis projektu A-51 oraz oferta na jego budowę, dostępna w dwóch różnych technologiach.
Większą wersją tego projektu jest projekt domu A-75
Bryła budynku domu A-51 jest efektem starannej pracy projektantów, którzy podzielili ją na dwie części połączone łącznikiem. Ta koncepcja nadaje budynkowi niepowtarzalny wygląd i sprawia, że jest on jednocześnie funkcjonalny. Dach domu jest dwuspadowy, o kącie nachylenia wynoszącym 45°, co dodaje uroku całej konstrukcji.
Elewacja budynku utrzymana jest w eleganckim graficznym tynku, który ładnie kontrastuje z drewnianymi elementami w układzie pionowym. To połączenie materiałów nadaje domowi nowoczesny i przyjemny wygląd. Duże przeszklenia w elewacji nie tylko stanowią dekorację, ale również skutecznie doświetlają wnętrza, tworząc przyjazne i jasne środowisko.
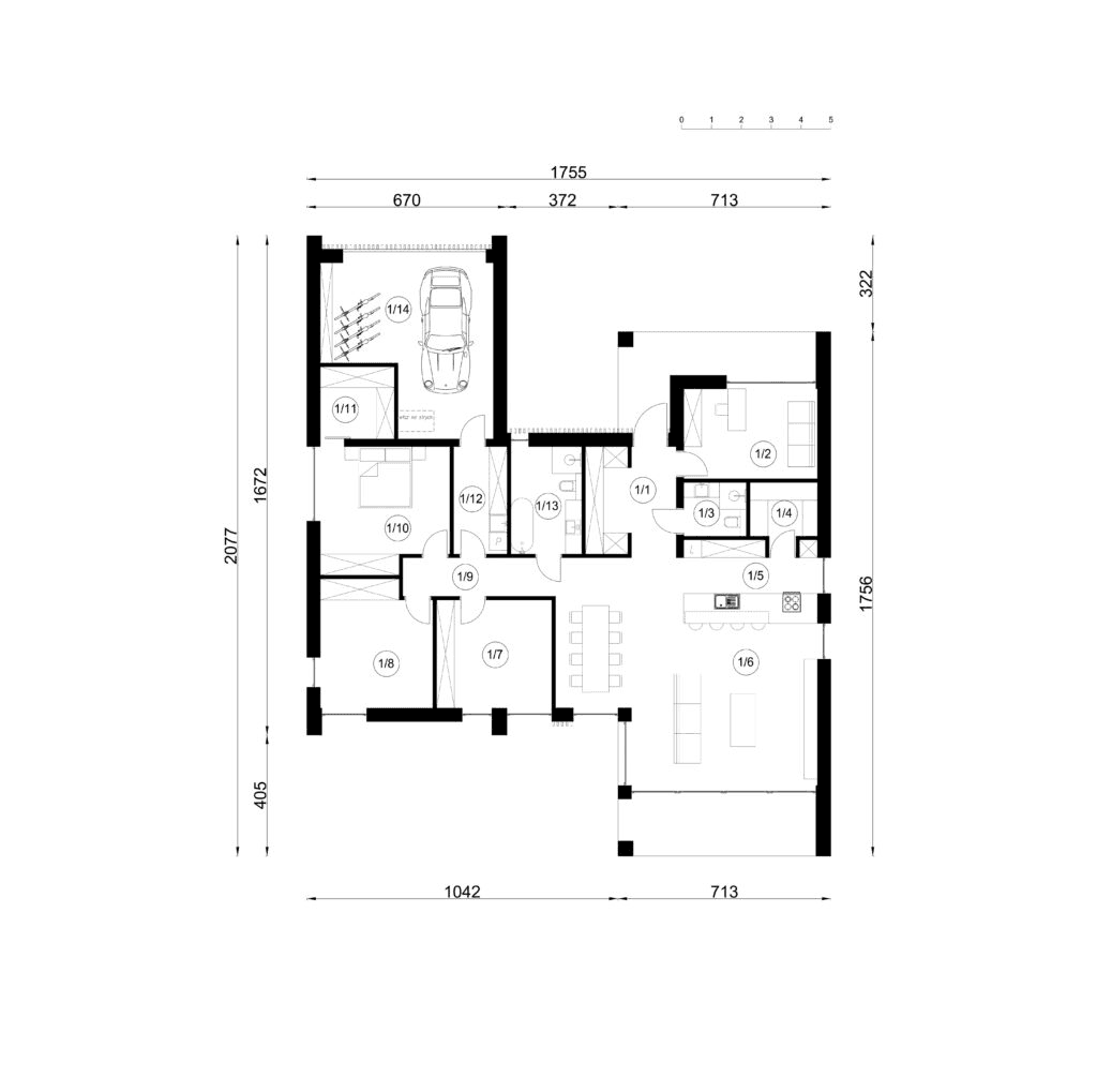
We wnętrzu domu A-51 widać wyraźny podział na część dzienną i nocną, co sprawia, że mieszkańcy mają oddzielone strefy do odpoczynku i pracy.
Część Dzienna
Część dzienną stanowi otwarta przestrzeń, która łączy w sobie salon, kuchnię i jadalnię. Wspaniała przestrzeń salonu jest idealnym miejscem do relaksu, z dużymi oknami, które pozwalają na cieszenie się widokiem na otoczenie. Kuchnia jest funkcjonalna i przestronna, co ułatwia codzienne przygotowywanie posiłków. Jadalnia to miejsce spotkań i rodzinnych posiłków, gdzie wszyscy domownicy mogą się zebrać i spędzić czas razem.
W tej części domu znajduje się również gabinet, który może pełnić rolę przestrzeni do pracy lub pokoju hobby. Dodatkowo, pomieszczenia pomocnicze, takie jak spiżarnia i łazienka, są doskonale dostępne, co sprawia, że życie w tym domu jest komfortowe i zorganizowane.
Część Nocna
Część nocną stanowią 3 sypialnie, łazienka i komunikacja. Sypialnie są wygodne i oferują prywatną przestrzeń do wypoczynku. Każda z sypialni może zostać zaadaptowana według potrzeb mieszkańców, czy to jako sypialnia rodziców, pokój dziecięcy lub przestrzeń do pracy zdalnej.
Łazienka jest funkcjonalna i nowoczesna, zapewniając komfortowe warunki do codziennej higieny. Korytarz łączy wszystkie te pomieszczenia, co ułatwia poruszanie się po domu.
Garaż i Pomieszczenie Gospodarcze
Dom A-51 ma w swojej bryle garaż jednostanowiskowy, co stanowi wygodę i bezpieczeństwo dla mieszkańców. Garaż jest połączony z pomieszczeniem gospodarczym, które może być wykorzystane jako przestrzeń do przechowywania narzędzi, rowerów lub innych rzeczy. To miejsce jest także dostępne z wnętrza domu, co ułatwia codzienne działania gospodarcze.
Oferta na Projekt z Budową
Oferujemy możliwość realizacji projektu domu A-51 w dwóch różnych technologiach budowlanych, aby sprostać różnym potrzebom klientów.
Technologia Tradycyjna
W przypadku technologii tradycyjnej, budowa domu A-51 będzie opierać się na klasycznych metodach konstrukcyjnych. To idealne rozwiązanie dla tych, którzy cenią tradycję i solidność. Nasza doświadczona ekipa budowlana zadba o to, aby każdy detal został wykonany z najwyższą starannością.
Technologia Drewniana
Jeśli jesteś zwolennikiem nowoczesnych rozwiązań i ekologii, to technologia drewniana może być dla Ciebie idealnym wyborem. Budowa w technologii drewnianej to nie tylko efektywność energetyczna, ale także przyjazne dla środowiska rozwiązanie. Dzięki naszemu doświadczeniu w pracy z drewnem, twój dom będzie nie tylko piękny, ale także trwały.
Podsumowanie
Projekt domu A-51 to połączenie nowoczesnego designu z funkcjonalnością, tworząc idealne miejsce do życia dla Twojej rodziny. Jego harmonijna bryła, elegancka elewacja i przemyślane wnętrza to gwarancja komfortu i wygody. Wybierając naszą ofertę na projekt z budową, masz możliwość wyboru technologii, która najlepiej spełnia Twoje oczekiwania. Jesteśmy gotowi, by zrealizować twój wymarzony dom – niezależnie od tego, czy cenisz tradycję czy postawisz na nowoczesność. Z nami Twój dom będzie miejscem, w którym spełnisz swoje marzenia.
Każdy projekt adaptujemy do warunków dzialki. Sprawdź ofertę na adaptacje do działki.
Do każdego projektu możesz zamówić kosztorys domu.
autor projektu: Marcin Macieszko












