New House 756 G1 - nowoczesny dom z poddaszem dla wymagających
New House 756 G1 to nowoczesny projekt domu z poddaszem, który doskonale sprawdzi się dla wymagających osób poszukujących wygodnego i funkcjonalnego miejsca do życia. Dom o powierzchni użytkowej 95,06 m2 oferuje jasny i czytelny układ wnętrza, który zapewnia komfort użytkowania na niewielkiej przestrzeni.
Dom w nowoczesnym stylu
New House 756 G1 to dom o nowoczesnej bryle z bezokapowym dachem dwuspadowym. Prosta forma budynku doskonale komponuje się z otaczającą architekturą. Elewacje domu wykonane są z drewna, tynku i kamienia naturalnego, co nadaje mu eleganckiego wyglądu.
Wygodne mieszkanie na małej przestrzeni
New House 756 G1 to idealny wybór dla osób, które chcą mieszkać wygodnie na niewielkiej przestrzeni. Dom składa się z trzech pokoi, kuchni, łazienki, WC, wiatrołapu oraz garażu jednostanowiskowego. Poszczególne pomieszczenia są funkcjonalnie rozmieszczone, dzięki czemu dom jest łatwy w utrzymaniu porządku.
Jasny i czytelny układ wnętrza
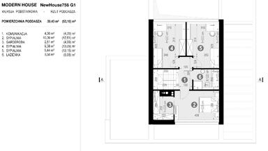
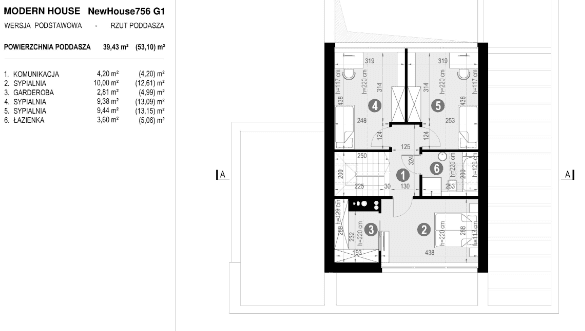
New House 756 G1 wyróżnia się jasnym i czytelnym układem wnętrza. Na parterze znajdują się salon z jadalnią, kuchnia, wiatrołap oraz WC. Na poddaszu znajdują się trzy sypialnie, łazienka oraz garderoba. Duże okna wpuszczają do wnętrza mnóstwo naturalnego światła, co sprawia, że dom jest jasny i przytulny.
Mały dom z wygodnym garażem
New House 756 G1 to mały dom z wygodnym garażem jednostanowiskowym. Garaż znajduje się w bryle budynku, dzięki czemu jest chroniony przed warunkami atmosferycznymi.
New House 756 G1 to nowoczesny projekt domu z poddaszem, który doskonale sprawdzi się dla wymagających osób poszukujących wygodnego i funkcjonalnego miejsca do życia. Dom oferuje jasny i czytelny układ wnętrza, który zapewnia komfort użytkowania na niewielkiej przestrzeni.
Nowoczesne projekty domów























