Elegancja i Przestronność W Nowoczesnym Stylu Stodoły - Projekt NewHouse 706
Projekt NewHouse 706 to odzwierciedlenie pełnej realizacji nowoczesności w architekturze. Ta imponująca willa z poddaszem użytkowym o powierzchni 232 m2 emanuje stylem i funkcjonalnością, wcielając w życie najnowsze trendy w dziedzinie projektowania. To propozycja dla tych, którzy marzą o przestronnej rezydencji, gdzie nowoczesność splata się z wyjątkowym stylem stodoły.
Projekt NewHouse 706 to harmonijna kompozycja przestrzeni z garażem na dwa pojazdy, przywodząca na myśl nowoczesną stodołę z wyjątkowym akcentem luksusu.
Całkowita powierzchnia użytkowa wynosząca 232 m2 to wyjątkowy obszar, gdzie parter zajmuje 120 m2, a poddasze 112 m2. Duża strefa dzienna z przestronnym salonem (44 m2) stanowi serce domu, oświetlone panoramicznymi przeszkleniami, które kierują wzrok na przepiękny taras i ogród. Drugi, kameralny taras (9 m2), zadaszony, jest idealny na chwile relaksu. W sąsiedztwie znajduje się przestronna kuchnia (13 m2) pełna naturalnego światła.
Wnętrza są nie tylko piękne, ale i funkcjonalne. Gabinet (12 m2) z widokiem na zielone otoczenie zapewni idealne miejsce do pracy. Taras obok gabinetu to doskonałe miejsce na chwilę wytchnienia. Łazienka (4 m2) z prysznicem typu walk-in dodaje uroku temu poziomowi.
Przestronna garderoba (7 m2), spiżarnia (4 m2), pomieszczenie gospodarcze (5 m2) i kotłownia (6,36 m2) pomagają utrzymać porządek.
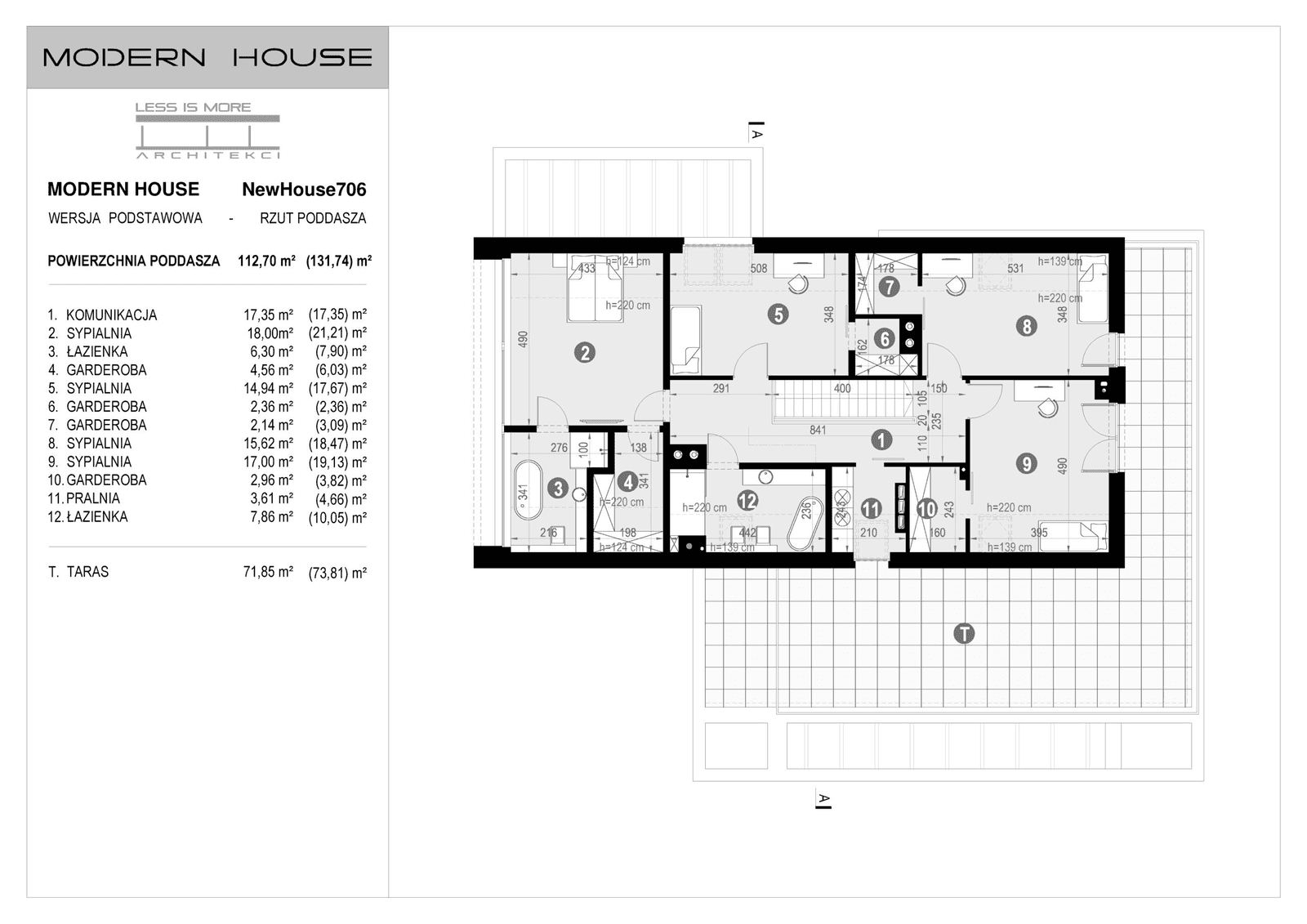
Na poddaszu znajdują się cztery komfortowe sypialnie, z których jedna to apartament małżeński (18 m2) z własną łazienką z wanną. Każda sypialnia ma osobną garderobę, podnosząc komfort codziennego życia. Duża łazienka (8 m2) i pralnia (4 m2) na tym poziomie to wygodne udogodnienia.
#ProjektNewHouse706 #NowoczesnaArchitektura #Przestronność #LuksusowyDom #StylStodoły #WillaZPoddaszem #HarmoniaPrzestrzeni
Nowoczesne projekty domów

























