Projekt NewHouse 707 to Innowacyjna Wizja Nowoczesnej Willi
Przekrocz próg wyjątkowego domu, którego kluczowym przesłaniem jest uwolnienie się od codziennego zgiełku – to wizja wpisana w projekt NewHouse 707. Ta nowoczesna rezydencja z poddaszem użytkowym nie tylko zachwyca swoim pięknem, lecz także oferuje przestrzeń, w której można odetchnąć od pracy, stresu i rutyny. Pracownia Modern House znów udowadnia, że tworzenie wyjątkowych projektów to ich pasja.
Strefa dziennej otwiera drzwi do ogromnego salonu (28 m2), harmonijnie połączonego z jadalnią (10 m2) i kuchnią (11 m2). Dzięki dużym przeszkleniom te pomieszczenia stają się integralną częścią ogrodu, wpuszczając naturalne światło i widoki przyrody do wnętrza. Oczywiście, patrząc na piękno natury, umysł odetchnie od codziennych trosk, a umożliwi to wspólne delektowanie się pięknem otoczenia. Kuchnia posiada także spiżarnię (2 m2) oraz toaletę (2 m2).
Projekt NewHouse 707 ma wyjątkową przestrzeń – osobny gabinet (13 m2) o imponujących rozmiarach. To idealne miejsce do pracy zdalnej, prowadzenia własnej firmy czy realizacji twórczych pasji. Gabinet posiada nawet własny zadaszony taras (16 m2), na którym można przenieść pracę na świeże powietrze.
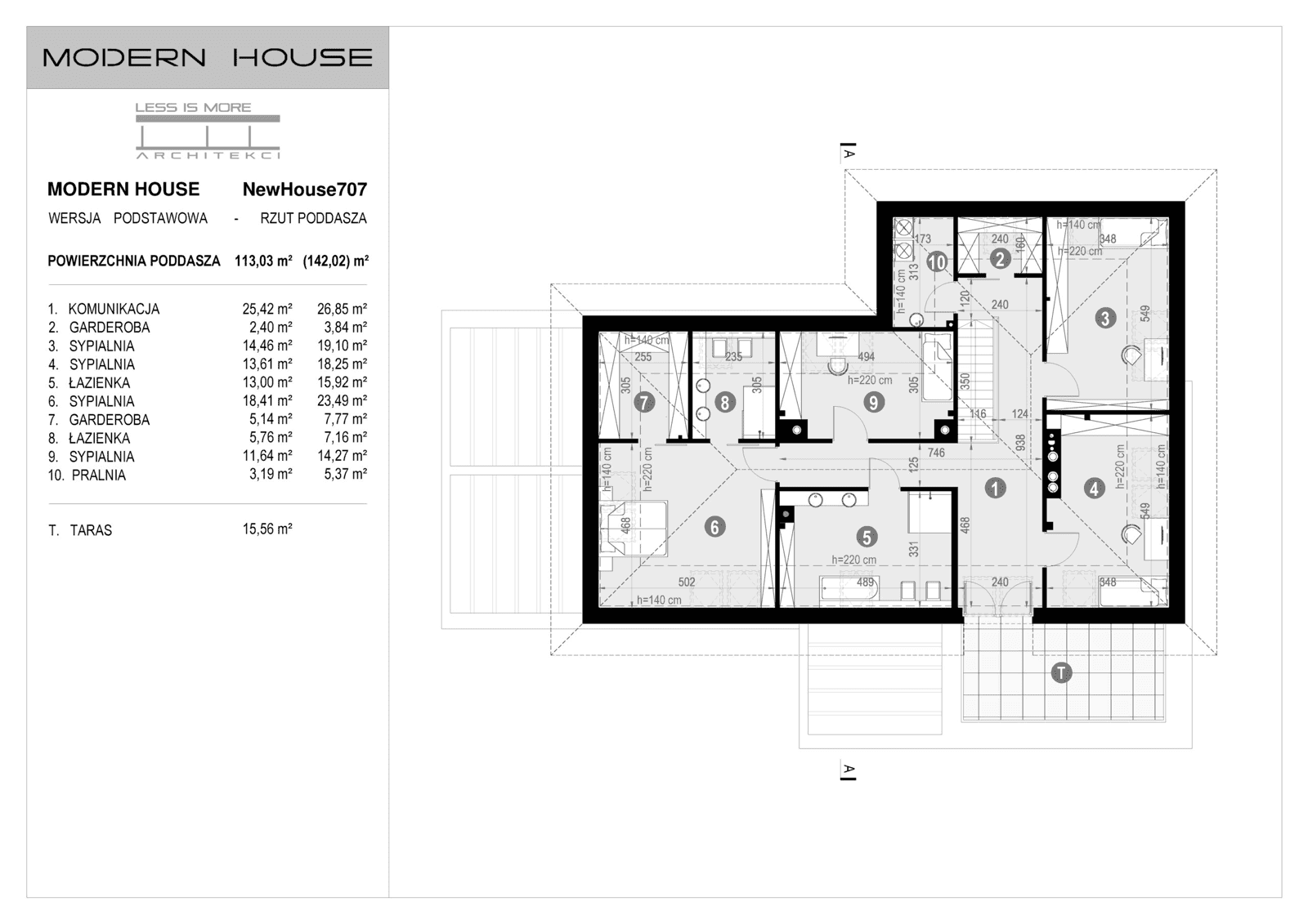
Na użytkowym poddaszu znajdują się aż cztery sypialnie (od 11 do 18 m2), z czego największa dysponuje własną łazienką (8 m2) i garderobą (5 m2). Pozostałe sypialnie mają dostęp do przestronnej łazienki (13 m2), pralni (3 m2) i dodatkowej garderoby (2 m2). Ta przemyślana aranżacja przestrzeni umożliwia swobodne uwolnienie się od chaosu i organizacyjnych zmartwień.
Projekt dopełnia garaż na dwa samochody. Warto podkreślić, że NewHouse 707 doskonale komponuje się z działkami z wjazdem od południa.
#NowoczesnaWilla #ProjektNewHouse707 #PrzestronnośćIDesign #UwolnijSięWNowoczesnymDomu #ModernHouseArchitekci #PrzemyślaneRozplanowaniePrzestrzeni #DomZPoddaszemUżytkowym #RezydencjaNaDziałkęZPodjazdemPołudniowym
Nowoczesne projekty domów






















