Projekt Małego Domu z Antresolą to NewHouse 758 G1 w1. Ekonomiczy projekt domu, ergonomiczny i wyjątkowy.
Odkryj NewHouse 758 G1 w1 - projekt domu, który w swoim wnętrzu skrywa nowoczesność i niepowtarzalny charakter bryły oraz elewacji.
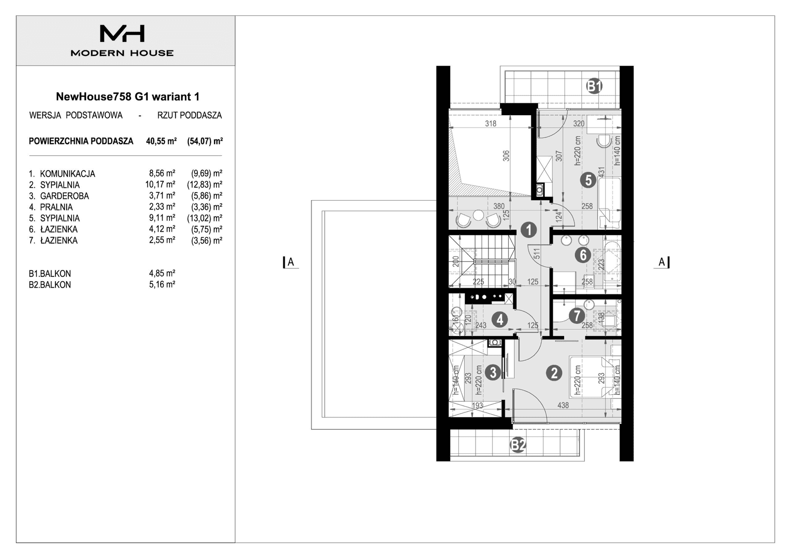
Ten kompaktowy jednorodzinny dom NewHouse 758 G1 w1 oferuje niezwykłą przestrzeń do wspólnych chwil. To projekt o powierzchni 107 m2, z podziałem na parter (67 m2) oraz poddasze (40 m2), gdzie każdy z domowników znajdzie swoje miejsce.
"Mały dom" często może sugerować ograniczoną przestrzeń, ale NewHouse 758 G1 w1 to wyjątek. Wystarczy spojrzeć na front tego domu z poddaszem, by poczuć przestronność. Inspirujący się stylem nowoczesnej stodoły, projekt zyskuje na imponującym i nowoczesnym wyglądzie. Odważna i nowoczesna elewacja, połączona z drewnem i blachą na rąbek na dachu i bryle, tworzy niepowtarzalny efekt.
Funkcjonalność i komfort wnętrza
Kluczowym pomieszczeniem na parterze jest salon z antresolą (26 m2). Przeszklona antresola dodaje wnętrzu przestronności, a wyjście na zadaszony taras tworzy płynny przejście do natury. Obok salonu znajduje się otwarta kuchnia (8 m2) z praktyczną spiżarnią (2 m2) oraz schowkiem (1 m2). Garderoba (3 m2) przy wiatrołapie i kotłownia (5,7 m2) ułatwiają organizację przestrzeni. Duży garaż (34 m2) zawiera pomieszczenie gospodarcze.
Na parterze znajduje się dodatkowy pokój (8,7 m2), idealny na gabinet, pokój gościnny lub sypialnię. Obok znajduje się niewielka łazienka z prysznicem.
Na poddaszu dwie sypialnie oraz antresola są głównymi aktorami. Jedna sypialnia to master bedroom z prywatną łazienką i garderobą. Każda sypialnia posiada wyjście na zadaszony balkon. Na poddaszu znajduje się również przestronna łazienka (4 m2) i pralnia (2,3 m2).
#NewHouse758G1w1 #ProjektyDomówNowoczesnych #ProjektyDomówZPoddaszem #Projekty150200m2 #StylNowoczesnejStodoły #ProjektyDomówJednorodzinnych #ProjektyDomówZDachemBezOkapu #ProjektyDomówEnergooszczędnych
Nowoczesne projekty domów























