Projekt domu Boss B2 w poszerzonej wersji to znakomicie przemyślany projekt domu, przeznaczony dla wyjątkowej rodziny o 4-5 osobach. To nowoczesne dzieło architektoniczne oferuje nie tylko komfort, ale także przestronność, idealnie dopasowaną do potrzeb dzisiejszego życia.
Zaraz przy wejściu zachwyca podwójny, poszerzony garaż, gwarantujący miejsce dla dwóch samochodów. Reprezentacyjne drzwi wprowadzają nas do obszernego holu, prowadzącego do wyjątkowej strefy dziennej. Tutaj znajdziemy funkcjonalną kuchnię, komfortową jadalnię oraz ekskluzywny kącik wypoczynkowy. Jadalnia, oświetlona dużym narożnym oknem, sąsiaduje z kuchnią, która może się pochwalić nowoczesną i praktyczną wyspą kuchenną.
Cała przestrzeń otacza piękny trójstronny kominek, stanowiący serce tego domu. Obszerny taras wychodzi na piękny ogród poprzez duże przeszklenie i balkonowe narożne okno. Wnętrza są pełne ciepłego, naturalnego światła, podkreślając piękno i harmonię projektu.
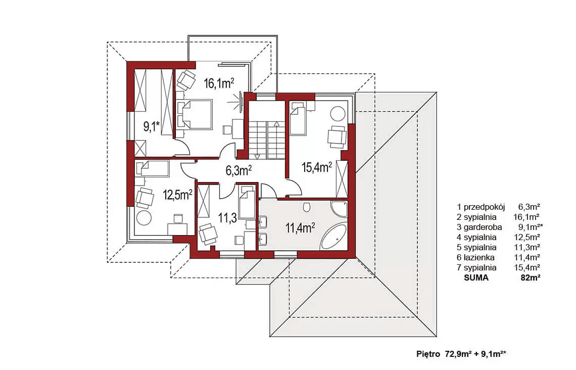
Parter to także miejsce na dodatkowy pokój, który może pełnić funkcję sypialni, gabinetu lub pokoju gościnnego. Na piętrze czekają cztery sypialnie o zróżnicowanym metrażu, dwie garderoby i komfortowa łazienka. Główna sypialnia posiada własną garderobę i duży balkon, zapewniając idealne miejsce do wypoczynku.
Ten unikalny projekt Boss B2, dostępny z różnymi opcjami ogrzewania, to wyjątkowe połączenie nowoczesności, komfortu i funkcjonalności.
#ProjektDomu #ProjektBossB2poszerzony #DomPoszerzony #NowoczesnaArchitektura #PrzestronneWnętrza #KomfortowyDom #EkskluzywneDetale #RodzinnyDom
Projekty domów jednorodzinnych i bliźniaczych
















