Projekt domu piętrowego Boss B, idealnego dla nowoczesnej rodziny o 4-5 osobach. To wyjątkowe miejsce łączy funkcjonalność z komfortem, oferując przestronne wnętrza i ekskluzywne detale. Dom posiada dwustanowiskowy garaż, który zapewnia wygodę i praktyczność.
Wnętrze składa się z nowocześnie zaprojektowanej kuchni, przytulnej jadalni i ekskluzywnej części wypoczynkowej. Jasna i przestronna jadalnia sąsiaduje z kuchnią, gdzie modna wyspa kuchenna tworzy funkcjonalną przestrzeń. Wszystkie te obszary otaczają piękny trójstronny kominek, tworząc serce domu.
Duże przeszklenia prowadzą na obszerny taras, który łączy dom z urokliwym ogrodem. Balkonowe narożne okno na piętrze zapewnia piękny widok i dostęp do świeżego powietrza. Na parterze znajduje się także dodatkowy pokój, który może pełnić rolę sypialni, gabinetu lub pokoju gościnnego.
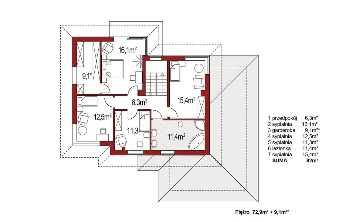
Przez wygodne schody doświetlane naturalnym światłem reprezentacyjnego okna docieramy na piętro, gdzie czekają cztery sypialnie o różnym metrażu, dwie garderoby i komfortowa łazienka. Główna sypialnia posiada panoramiczne narożne okno balkonowe, otwierające się na obszerny balkon.
Projekt domu Boss B to harmonijne połączenie nowoczesnego designu z funkcjonalnością, stworzone z myślą o komforcie i przestrzeni dla całej rodziny.
#domPiętrowy #GotowyProjektDomu #NowoczesneWnętrza #KomfortowyDom #EkskluzywneDetale #Przestronność
Projekty domów jednorodzinnych i bliźniaczych
















