Projekt Boss A 25 stopni to wspaniały dom, który łączy nowoczesność, efektowny design i niezrównany komfort, tworząc idealne miejsce dla rodziny 4-5 osobowej. Ten piętrowy dom z dwustanowiskowym garażem zachwyca swoją oryginalną bryłą, która nadaje mu wyjątkowy charakter. Wnętrze tego domu wyróżnia się funkcjonalnością i dbałością o detale.
Kiedy przekraczamy progi reprezentacyjnych drzwi z bocznymi naświetlami, witają nas przestronny przedsionek, który prowadzi nas do magicznej strefy dziennej. Funkcjonalna kuchnia, wygodna jadalnia i ekskluzywna część wypoczynkowa składają się na idealnie zaprojektowane pomieszczenia. Duże narożne okno w jadalni dostarcza mnóstwo naturalnego światła, a kuchnia może pomieścić stylową i praktyczną wyspę kuchenną.
Z orientacji od strony ogrodowej, wychodzimy na obszerny taras przez duże przeszklenie, balkonowe narożne okno. To miejsce oczarowuje nas pięknym widokiem na ogród i taras, tworząc doskonałe połączenie między domem a naturą. Na parterze znajduje się dodatkowy pokój, który może pełnić różnorodne funkcje - od sypialni, przez gabinet po przytulny pokój gościnny.
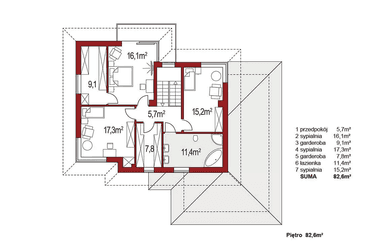
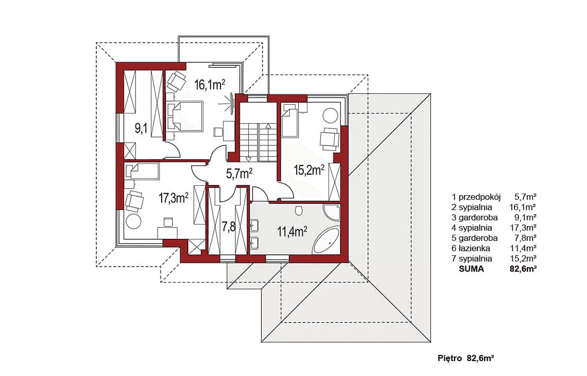
Na piętrze, wygodne schody oświetla reprezentacyjne okno, prowadząc nas do strefy nocnej. Tam znajdują się trzy sypialnie o zróżnicowanym metrażu, dwie garderoby i komfortowa łazienka. Główna sypialnia urzeka swoją przestrzennością, a przez panoramiczne, narożne okno balkonowe mamy dostęp do dużego balkonu, który jest oazą spokoju na świeżym powietrzu.
Projekt Boss A 25 stopni jest dostępny w wersjach A i B z kątem nachylenia dachu 20 stopni, a także w poszerzonej wersji Boss B2. Dostępność różnych wariantów sprawia, że dom jest dostosowany do różnych preferencji i potrzeb Inwestorów.
To wyjątkowe miejsce, gdzie funkcjonalność, styl i przestrzeń łączą się w harmonijną całość, tworząc idealny dom dla wymarzonego rodzinengo życia.
#ProjektBossA25Stopni #NowoczesnyDom #EfektownyDesign #KomfortoweMieszkanie #StrefaDzienne #PiętrowyDom #OgródITerasa #TrójstronnyKominek #WyjątkowyCharakter #ProjektowanieDomu #StylowyDom #InwestycjaWPrzyszłość #WygodaIRodzinneŻycie #DoskonałePołączenieZNaturą #DomZPięknymWidokiem #FunkcjonalnaKuchnia #InwestujWeWłasnyDom #DomMarzeń #PrzestrzeńINowoczesność #HarmoniaIWygoda #IdealnyDomDlaRodziny #ProjektDomu #PięknyOgród #OazaSpokojuNaBalkonie
Projekty domów jednorodzinnych i bliźniaczych





















