Projekt Boss A to innowacyjny dom piętrowy z dwustanowiskowym garażem, który oczarowuje nowoczesnym designem, funkcjonalnością i wygodą, tworząc wymarzone miejsce dla rodziny 4-5 osobowej. Już na pierwszy rzut oka widać, że to budynek pełen prestiżu i wyjątkowej estetyki.
#ProjektBossA #DomPiętrowy #DwustanowiskowyGaraż #NowoczesnyDesign #FunkcjonalnyDom #WygodneMieszkanie #EstetykaINowoczesność #StrefaDziewne #KominekJakoCentrum #HarmoniaWnętrza #PrzepięknyOgród #OazaSpokoju #EkskluzywnaSypialnia #PanoramiczneOkno #WyjątkowyDom #ProjektowanieWłasnegoMieszkania #NowoczesneRozwiązania #DomMarzeń
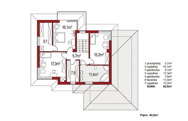
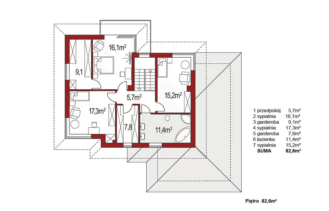
Na parterze znajduje się także dodatkowy pokój, który może pełnić różnorodne funkcje - od sypialni po gabinet lub pokój gościnny. Na piętro prowadzą wygodne schody, oświetlone efektownym oknem, prowadząc nas do strefy nocnej. Tam zlokalizowane są trzy sypialnie o zróżnicowanym metrażu, dwie garderoby i komfortowa łazienka. Główna sypialnia zachwyca przestronnością, a przez panoramiczne, narożne okno balkonowe mamy dostęp do dużego balkonu, tworząc oazę spokoju na świeżym powietrzu.
Projekt Boss A posiada także wariant B, który oferuje cztery sypialnie na piętrze. To wszechstronny dom, który dostosowuje się do potrzeb jego mieszkańców. Co więcej, projekt uwzględnia różne opcje ogrzewania - od kotła gazowego po paliwo stałe, dając Inwestorowi możliwość wyboru najbardziej odpowiedniego dla swoich preferencji.
To niezwykłe miejsce, gdzie nowoczesność spotyka się z funkcjonalnością, a wygoda idzie w parze z elegancją. Projekt Boss A to dom, w którym każdy detale został dopracowany, tworząc harmonijną przestrzeń dla wymarzonego rodzinnego życia.
Projekty domów jednorodzinnych i bliźniaczych





















