Projekt domu Anita Nova A z pojedynczym garażem to projekt domu jednordzinnego taniego w budowie i bardzo popularnego.
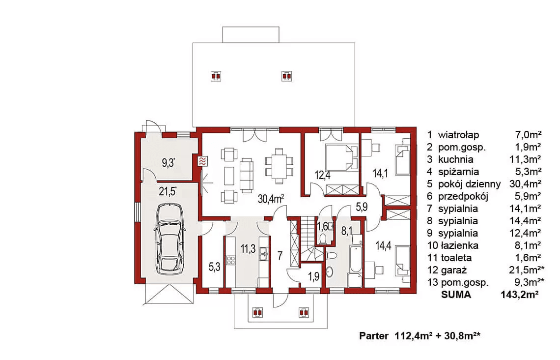
Anita Nova A to najnowsza wersja popularnego projektu Anita A, która została odświeżona i dostosowana do współczesnych potrzeb. W nowej wersji, garaż został poszerzony do szerokości 3,5 metra, zapewniając większą funkcjonalność i wygodę dla właścicieli pojazdów. Zadaszenie tarasu zostało znacznie powiększone, umożliwiając domownikom relaks na świeżym powietrzu nawet w najgorętsze dni, a także ochronę przed słońcem i deszczem, dzięki czemu meble ogrodowe znajdujące się na tarasie są bezpieczne i dobrze osłonięte. Prosta konstrukcja zadaszenia przyczynia się do łatwego wykonania oraz niskich kosztów pokrycia, co stanowi dodatkowy atut projektu.
#AnitaNovaA #ProjektDomu #StylTradycyjny #DomParterowy #NowoczesnaArchitektura #TarasZadaszony #KominekWnętrzu #PrzestronneWnętrze #PomieszczenieGospodarcze #DomRodzinny #ElastycznyProjekt #DomZPoddaszem
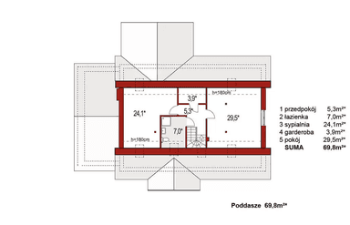
Porjekt domu, Dom Anita Nova to jednopiętrowa konstrukcja, która zapewnia wygodę i komfort mieszkania. Jednak największym plusem tego projektu jest możliwość adaptacji poddasza w przyszłości, dając potencjalnie więcej przestrzeni życiowej dla rodziny. Dodatkowym praktycznym rozwiązaniem jest przestronna spiżarnia, pozwalająca na przechowywanie zapasów i żywności w wygodny i zorganizowany sposób.
Projekt domu Anita Nova A z pewnością zadowoli Inwestorów, którzy cenią sobie cechy stylu tradycyjnego, a jego uniwersalny design sprawia, że doskonale wkomponuje się w różnorodne okolice, zachowując swój urok i elegancję.
Projekty domów jednorodzinnych i bliźniaczych






















