Projekt domu Anita Nova A.
Anita Nova A to najnowsza, odświeżona wersja cenionego projektu domu Anita A. W tej wersji A garaż został poszerzony do imponującej szerokości 3,5 m, co niewątpliwie podnosi jego funkcjonalność i użyteczność. Zadaszenie tarasu zostało znacznie powiększone, aby mieszkańcy mogli delektować się chwilami wypoczynku na tarasie nawet podczas najgorętszych dni, jednocześnie chroniąc się przed promieniami słonecznymi i ulewami, gdy na tarasie znajdują się meble ogrodowe.
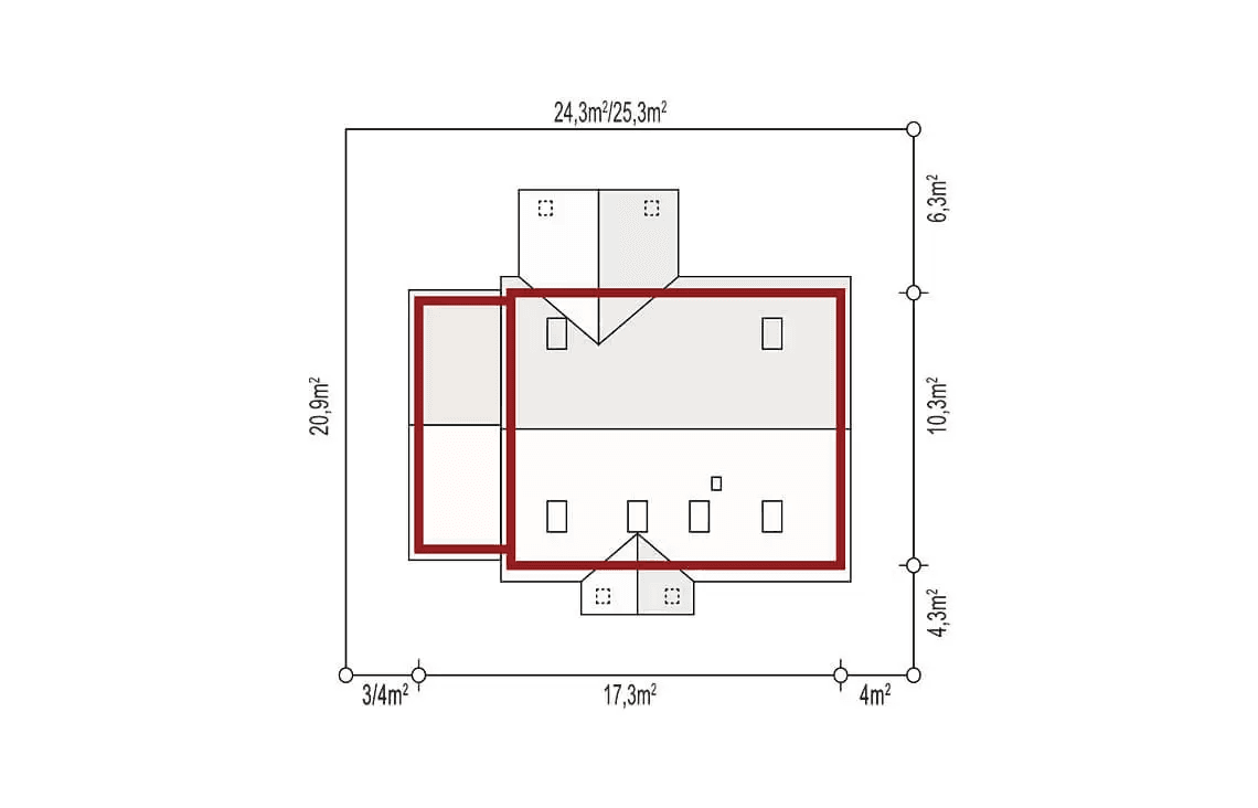
Projekt Anita Nova to wyjątkowy dom parterowy, gdzie poruszanie się po wnętrzu jest niezwykle komfortowe. Jednak najbardziej intrygującym aspektem jest możliwość adaptacji poddasza w przyszłości, dając możliwość zaaranżowania dodatkowej przestrzeni w razie potrzeby. Praktyczna spiżarka, która jest blisko, jest doskonałym uzupełnieniem funkcjonalności domu.
Wnętrze składa się z przyjemnej strefy dziennego wypoczynku, gdzie salon i jadalnia tworzą przestronne wnętrze, zachęcające do spędzania czasu razem. Szczególnym elementem jest kominek usytuowany w salonie, który wzbogaca wnętrze i nadaje mu niepowtarzalny, ciepły klimat. Projekt uwzględnia również wygodną łazienkę oraz oddzielną toaletę, co jest szczególnie użyteczne przy większej liczbie domowników.
Strefa nocna składa się z trzech sypialni, co sprawia, że dom jest odpowiedni dla rodzin składających się z 2-4 osób. Istnieje również możliwość przekształcenia przestrzeni w pokój dla gości lub gabinet, w zależności od indywidualnych potrzeb. Dodatkowo, pomieszczenie gospodarcze, które zostało uwzględnione w projekcie, pomoże w utrzymaniu porządku w domu.
Poddasze stanowi wszechstronną przestrzeń, która może być zaadaptowana na dwa dodatkowe pokoje i dodatkową łazienkę, zapewniając elastyczność dla przyszłych potrzeb domowników. Projekt Anita Nova A z pewnością zadowoli inwestorów ceniących tradycyjny styl, prezentując się znakomicie bez względu na położenie.
#ProjektDomu #AnitaNovaA #OdświeżonaWersja #FunkcjonalnośćGarażu #PowiększonyTaras #KomfortowyDom #AdaptacjaPoddasza #StylTradycyjny #PrzestronneWnętrza #KominekWSalonie #WygodnaŁazienka #RodzinnyDom
Projekty domów jednorodzinnych i bliźniaczych






















