Projekt domu Harmonia Nova A to nowoczesna i funkcjonalna forma, która zachwyca swoją prostotą i stylem. To projekt domu tani w budowie i perełka projektowa. Ta nowa wersja projektu Harmonia została jeszcze bardziej przemyślana, uwzględniając potrzeby mieszkańców i otwartość na otoczenie dzięki dużym przeszkleniom okien tarasowych.
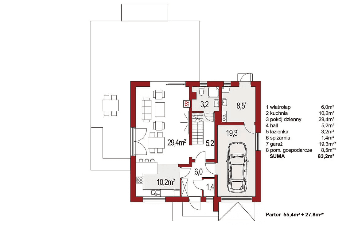
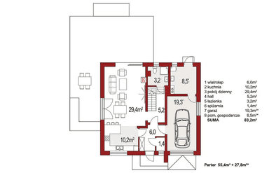
Bryła budynku jest elegancka i prosta, co dodaje mu nowoczesnego charakteru. Na parterze znajduje się salon z jadalnią, które łączą się z wygodną kuchnią. Duże okna tarasowe prowadzą bezpośrednio z salonu i jadalni na taras, tworząc idealne miejsce do odpoczynku na świeżym powietrzu.
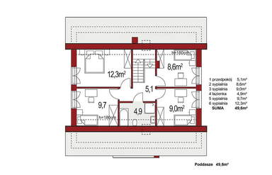
Przy wejściu do domu znajduje się także małe pomieszczenie pomocnicze, które może pełnić funkcję spiżarni, ułatwiając organizację przestrzeni kuchennej. W garażu dostępne jest pomieszczenie kotłowni, które bez problemu pomieści kocioł na paliwo stałe, dając możliwość wykorzystania ekologicznego ogrzewania. Na poddaszu znajdują się cztery sypialnie i łazienka, zapewniając komfortowe warunki do spania i wypoczynku dla całej rodziny.
#ProjektDomu #HarmoniaNovaA #NowoczesnyDom #Funkcjonalność #StylowyDom #DużePrzeszklenia #Taras #WygodnaKuchnia #PrzestrzeńSalonu #EleganckaBryła #DomZPoddaszem #KomfortoweSypialnie #ProjektyDomów #DomDlaRodziny #NowoczesnaArchitektura #EkologiczneOgrzewanie #Kominek #PrzestronnyDom #ProjektowanieDomu #DomowyKąt #RodzinnyDom
Projekty domów jednorodzinnych i bliźniaczych






















