Projekt domu jednorodzinnego parterowego Nina 2 Nova D 37 PLUS to tani w budowie i bardzo wygdony mały dom parterowy. Nowoczesny i efektowny dom parterowy Nina 2 Nova D 37 PLUS z monolitycznym stropem, jest wyjątkowym połączeniem komfortu i nowoczesnego stylu. Ta ulepszona wersja popularnego projektu Nina 2 Nova D 37 oferuje dodatkową przestrzeń i funkcjonalność dla 4-5 osobowej rodziny. Wnętrze domu zachwyca przestronnym wiatrołapem, który prowadzi do otwartej części dziennej.
#ProjektNina2NovaD37PLUS #HarmoniaINowoczesność #KomfortoweWnętrza #EfektownyDesign #JednostanowiskowyGaraż #RelaksNaTarasie #NiskieKosztyBudowy #OgrzewanieGazowe #KotłowniaNaPaliwoStałe #ProjektowanieDomów #DesignWnętrz
Projekt domu Nina 2 Nova D 37 PLUS oferuje różne opcje, w tym możliwość wyboru kotłowni na paliwo stałe lub ogrzewania gazowego. Istnieje również możliwość dostosowania projektu do indywidualnych preferencji, dzięki odbiciu lustrzanemu.
Nina 2 Nova D 37 PLUS to harmonijne połączenie nowoczesności, komfortu i efektownego designu, które tworzą wyjątkową przestrzeń do życia dla każdej rodziny.
Część dzienno-nocna domu Nina 2 Nova D 37 PLUS została zaprojektowana tak, aby zapewnić maksymalny komfort i funkcjonalność. Wygodna i praktyczna kuchnia harmonijnie połączona jest z przestronnym salonem, co umożliwia płynne przepływy między tymi obszarami i stały kontakt domowników podczas codziennych aktywności.
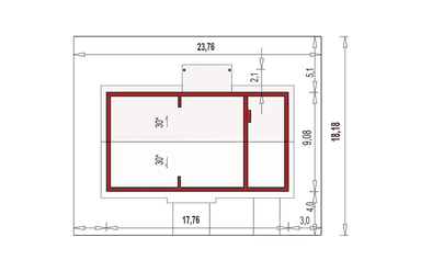
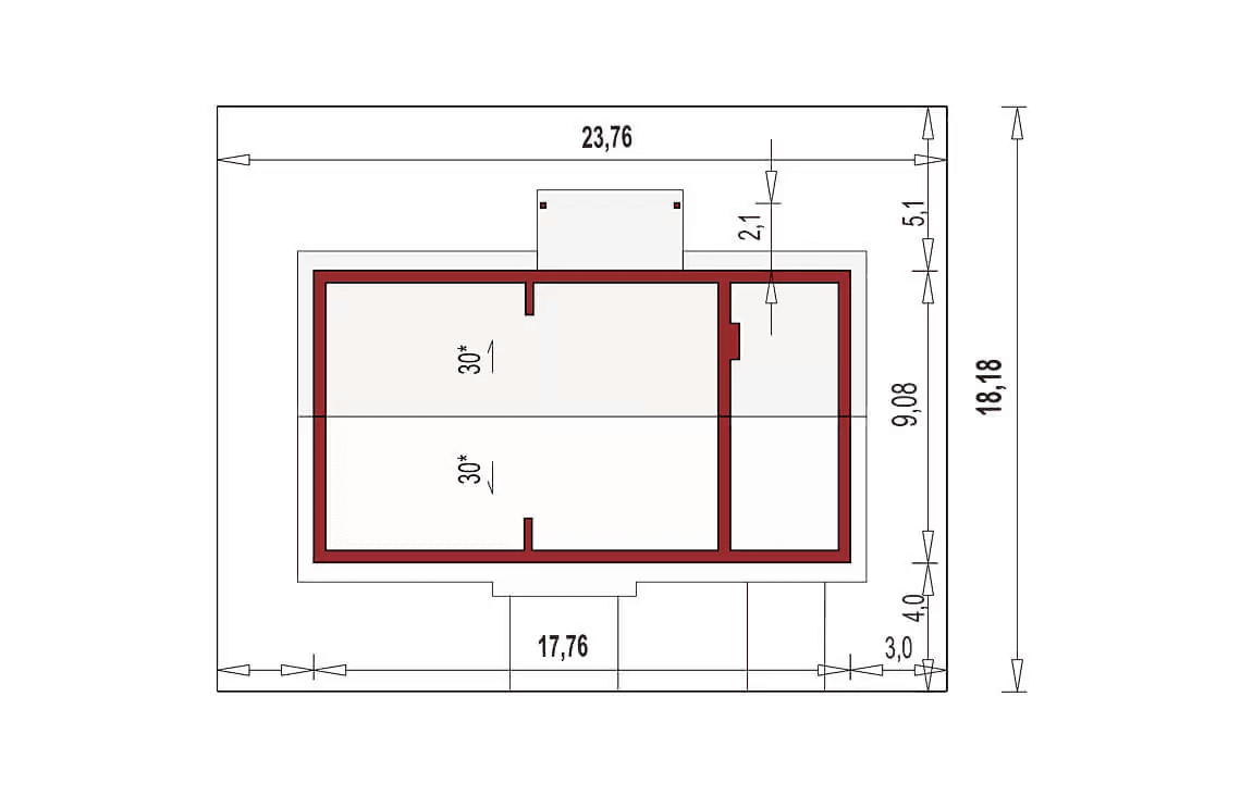
Część nocna domu Nina 2 Nova D 37 PLUS oferuje trzy przytulne sypialnie oraz łazienkę, gwarantując prywatność i wygodę dla wszystkich domowników. Konstrukcja domu, oparta na prostym schemacie, zapewnia nie tylko niskie koszty budowy, ale także solidność i trwałość. Bryła budynku jest nakryta dwuspadowym dachem o nachyleniu 37 stopni, który dodaje mu wyjątkowego charakteru. Zarówno część mieszkalna, jak i garażowa, pokryte są jednolitym dachem dwuspadowym, tworząc spójną całość.
Projekty domów jednorodzinnych i bliźniaczych






















