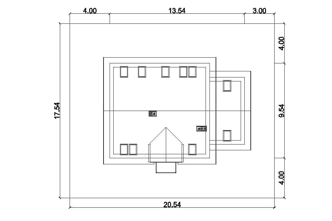
Projekt Eco 06 prezentuje przestronny i funkcjonalny dom z poddaszem użytkowym. Jego bryła charakteryzuje się prostotą i zwartością, z nieskomplikowanym dachem dwuspadowym. Taka forma sprawia, że budowa i eksploatacja tego domu są stosunkowo niedrogie. Wzdłuż prawej ściany szczytowej znajduje się jednostanowiskowy garaż, nad którym umieszczono strych. Wyróżniającym elementem projektu Eco 06 jest elegancka lukarna, która ozdabia klasyczną bryłę budynku, dostarcza światła do pokoju na poddaszu i dzięki balkonowi nadaje zadaszenie nad strefą wejściową.
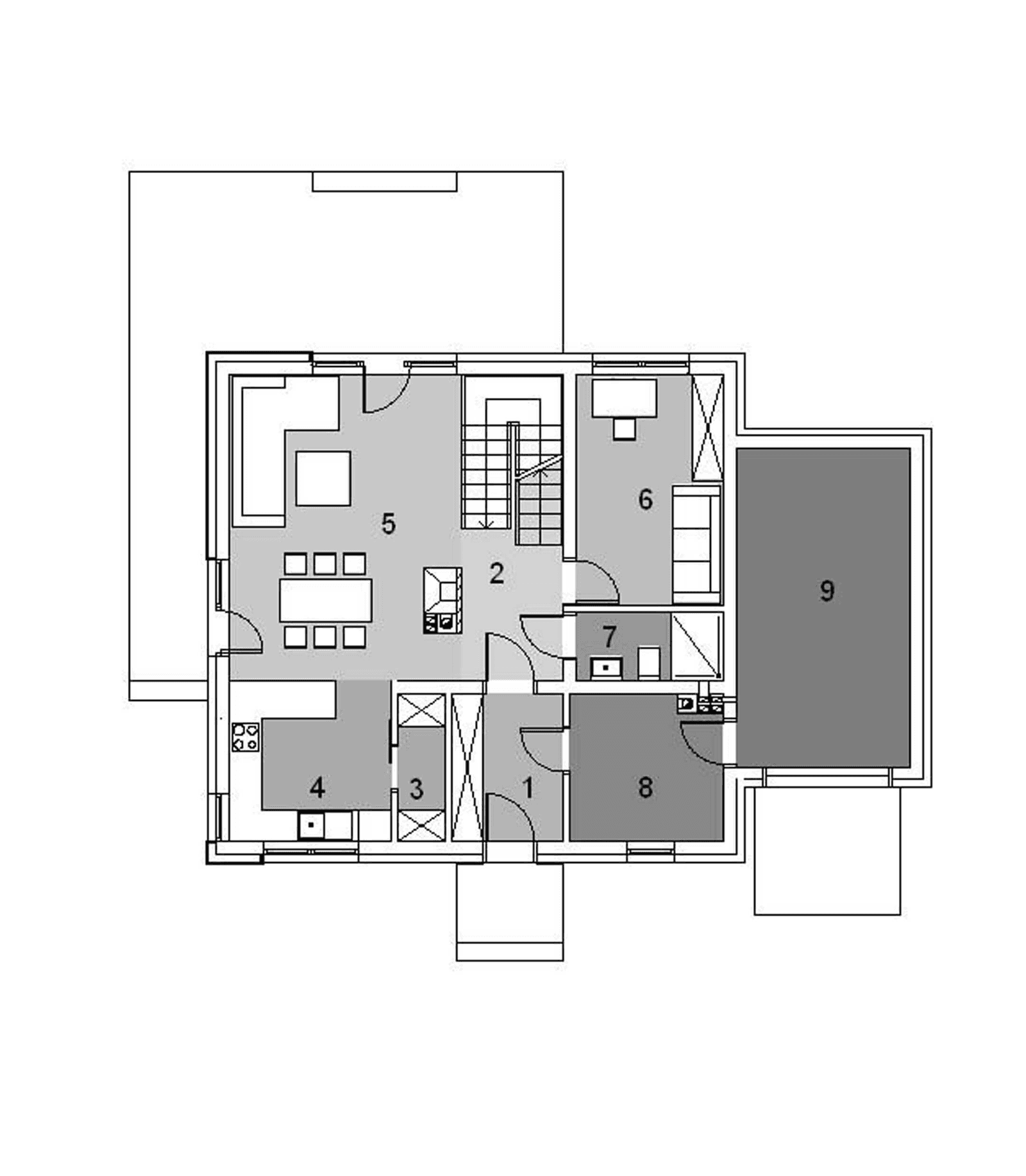
Wewnątrz domu Eco 06 zaplanowano liczne wnęki, które dają możliwość dodatkowej zabudowy. Garaż został połączony z wnętrzem mieszkania poprzez kotłownię. Wejście do kotłowni znajduje się w wiatrołapie, a po jego opuszczeniu wchodzimy do korytarza. Po prawej stronie korytarza znajduje się łazienka i dodatkowy pokój. Dużą część parteru zajmuje przestronny, ustawny i reprezentacyjny salon, w którym umieszczono przyjemny kominek. Salon otaczają dwa tarasy, które stanowią przyjemne przedłużenie przestrzeni wewnętrznej. Salon jest połączony z kuchnią z spiżarnią, która znajduje się od frontu.
Na poddaszu domu Eco 06 znajduje się typowa strefa prywatna. Składa się z trzech przytulnych sypialni. Największa z nich została połączona z garderobą i łazienką, tworząc wygodny apartament dla właścicieli. Obok sypialni znajduje się ogólnodostępna łazienka dla pozostałych członków rodziny. Nad garażem pozostawiono strych, który można przekształcić na dodatkowe pomieszczenia mieszkalne. Właściciel ma możliwość dostosowania projektu do swoich potrzeb.
#projektdomu #projektpoddaszem #domrodzinny #nowoczesnydom #kominek #taras #sypialnie #garaż #adaptacja #funkcjonalność
Kolekcja zawiera warianty domów w zabudowie bliźniaczej, szeregowej i jako projekty dwulokalowe. Polecamy zgrabne, funkcjonale projekty z potencjałem.















