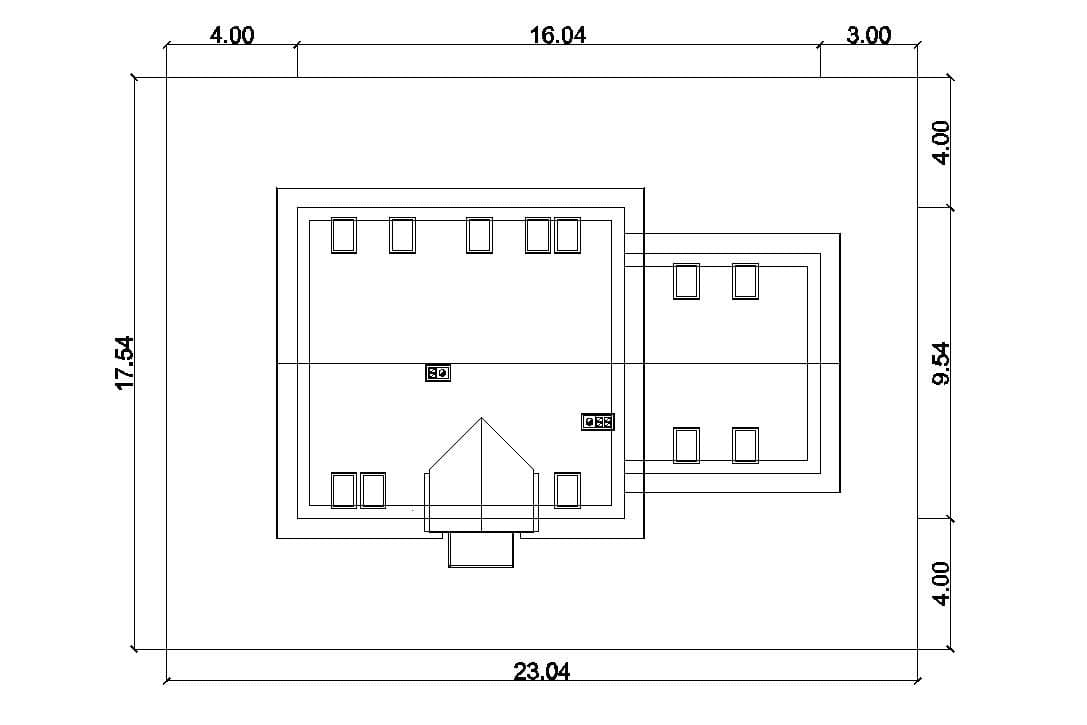
Projekt gotowy Eco 07 to projekt domu jednorodzinnego z poddaszem, tani w budowie, energooszczędny i ekonomiczny. Dzięki swojej zwartej bryle, ten dom jest nie tylko ekonomiczny w budowie, ale także w późniejszej eksploatacji. Liczne wnęki, zastosowane w projekcie, dają możliwość stworzenia dodatkowej przestrzeni użytkowej, dopasowanej do indywidualnych potrzeb.
Projekt Eco 07 uwzględnia różne opcje dotyczące garażu. Inwestor ma możliwość wyboru wersji bez garażu, z pojedynczym garażem lub z podwójnym garażem.
#projektdomu #projektpoddaszem #domrodzinny #funkcjonalnedom #ekonomicznydom #nowoczesnydom #taras #sypialnie #garaż #przestrzeń
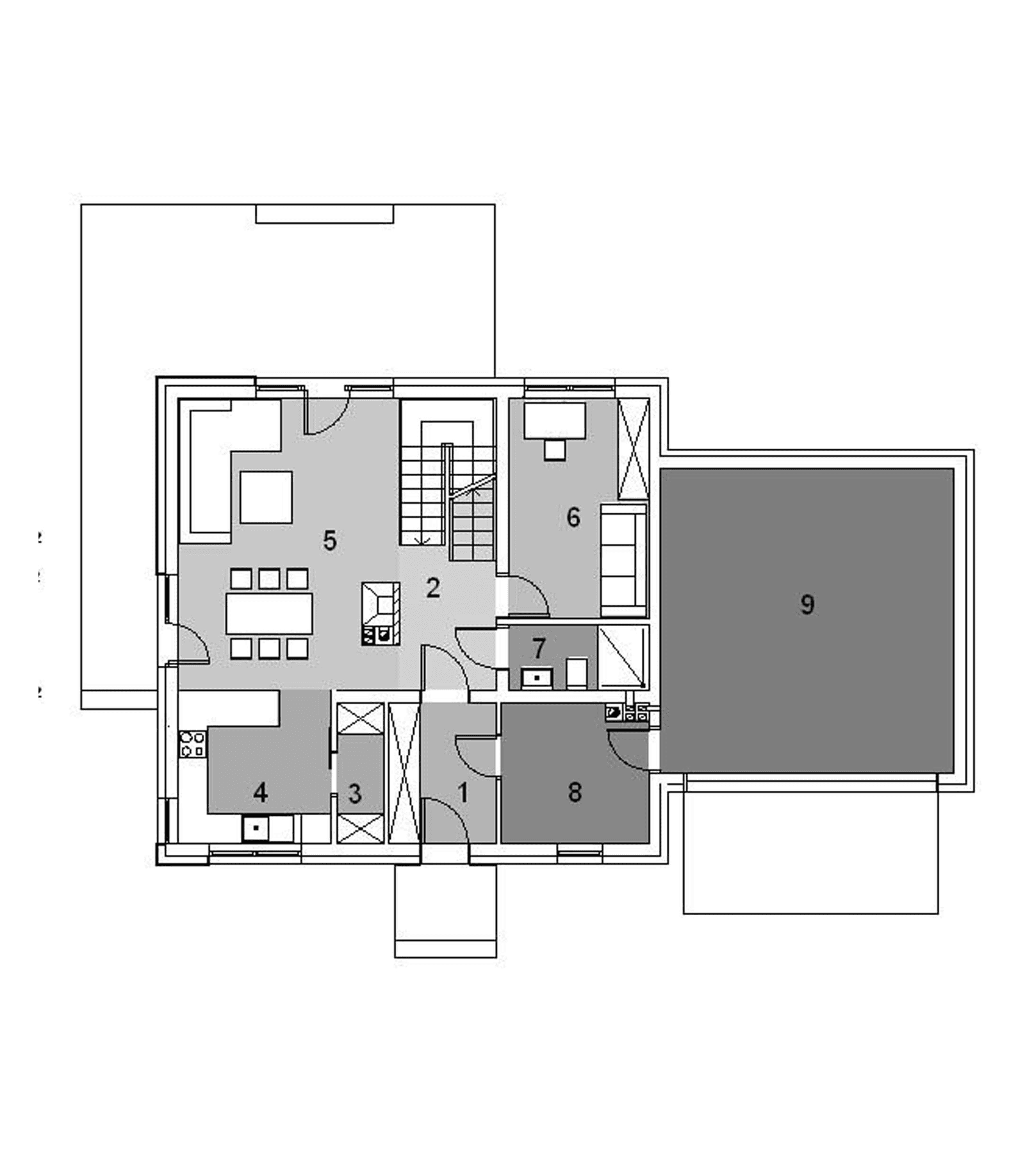
Strefa dzienna projektu domu Eco 07 składa się z otwartej kuchni, z przylegającą do niej spiżarnią oraz salonu z jadalnią. Te trzy funkcjonalne pomieszczenia płynnie łączą się ze sobą, tworząc przestrzeń idealną do wspólnego gotowania, spożywania posiłków i relaksu. Dodatkowo, salon ma bezpośrednie wyjście na taras, zapewniając łatwy dostęp do świeżego powietrza i przestrzeni na zewnątrz. W projekcie Eco 07 znalazł się również dodatkowy pokój na parterze, który może pełnić rolę gabinetu, pokoju dla seniora lub przyjaznego miejsca dla gości.
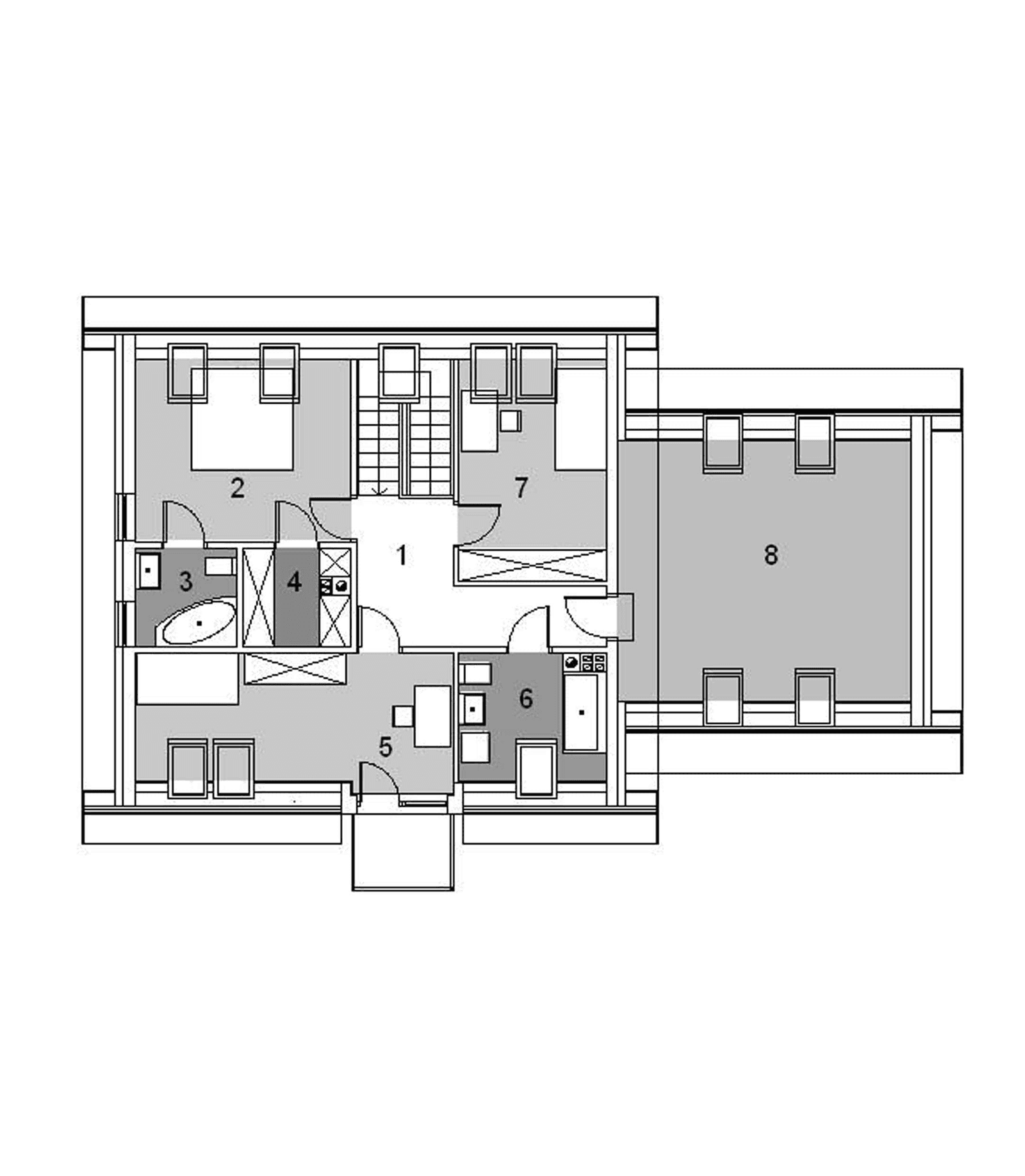
Na piętrze tego domu znajdują się trzy sypialnie. Jedna z nich ma przyległą łazienkę oraz garderobę, zapewniając intymność i wygodę. Inna sypialnia posiada wyjście na uroczy balkon, gdzie można cieszyć się świeżym powietrzem i pięknymi widokami.
Kolekcja zawiera warianty domów w zabudowie bliźniaczej, szeregowej i jako projekty dwulokalowe. Polecamy zgrabne, funkcjonale projekty z potencjałem.















