Eco 46 – ekonomiczne rozwiązanie dla 3-osobowej rodziny
Projekt domu Eco 46 to doskonała propozycja dla osób poszukujących kompaktowego, a jednocześnie funkcjonalnego domu. Ten parterowy projekt o powierzchni blisko 82 m² został zaprojektowany z myślą o ekonomii przestrzeni oraz niskich kosztach budowy i eksploatacji. Idealnie sprawdzi się zarówno jako dom bliźniaczy, jak i dwulokalowy, zaspokajając potrzeby zarówno inwestorów prywatnych, jak i deweloperów.
Zalety projektu Eco 46 – oszczędność i funkcjonalność
- Powierzchnia użytkowa: ok. 82 m², co sprawia, że projekt idealnie nadaje się na różnej wielkości działki, zarówno w miastach, jak i na terenach wiejskich. Dom daje możliwość realizacji marzeń o własnych czterech kątach w cenie mieszkania.
- Kompaktowa bryła: dzięki zwartej formie i wielospadowemu dachowi, dom jest tani w budowie oraz łatwy w utrzymaniu. Krótszy czas budowy i niższe koszty eksploatacyjne to dodatkowe atuty.
- Możliwość adaptacji: projekt Eco 46 może być zrealizowany jako zabudowa bliźniacza lub dwulokalowa inwestycja, co zwiększa jego elastyczność i potencjał na rynku nieruchomości.
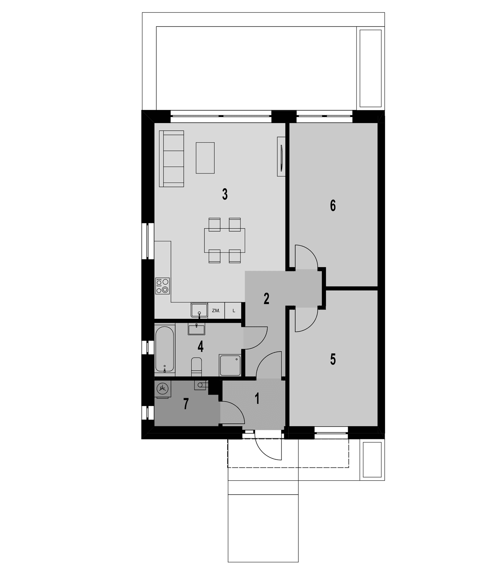
Przemyślany układ funkcjonalny w domu Eco 46
Mimo niewielkiej powierzchni, dom Eco 46 zapewnia komfortowe warunki dla 3-osobowej rodziny. Jego układ został zaprojektowany tak, aby maksymalnie wykorzystać dostępne metry kwadratowe.
- Strefa dzienna:
- Otwarta kuchnia połączona z jadalnią oraz przestronnym salonem tworzy serce domu.
- Kuchnia oferuje dużo miejsca do przechowywania, a także przestrzeń do swobodnego przygotowywania posiłków.
- Salon z dużymi oknami zapewnia dostęp do naturalnego światła i piękne połączenie z ogrodem, co dodaje przestronności i tworzy przyjazną atmosferę.
- Strefa nocna:
- Projekt obejmuje dwie sypialnie o zbliżonej wielkości. Każda z nich jest jasna i dobrze doświetlona dzięki dużym oknom, tworząc przytulne warunki do wypoczynku.
- Łazienka i pomieszczenia pomocnicze: przestronna łazienka oraz dodatkowe miejsce na przechowywanie zapewniają komfortowe warunki życia codziennego.
Eco 46 to nowoczesna estetyka i uniwersalny design
Projekt Eco 46 wyróżnia się nie tylko funkcjonalnością, ale również nowoczesnym wyglądem. Jego ciemna dachówka idealnie współgra z jasnym tynkiem i elementami z drewna, co nadaje domu wyjątkowy charakter. Taka estetyka doskonale wpisuje się zarówno w krajobraz miejski, jak i wiejski, czyniąc Eco 46 uniwersalnym wyborem dla różnych lokalizacji.
Eco 46 to idealna opcja dla oszczędnych inwestorów
Eco 46 to projekt domu parterowego, który łączy w sobie komfort, funkcjonalność i ekonomiczność. Jego przemyślany układ i nowoczesna bryła sprawiają, że jest to idealny wybór dla rodzin, które cenią sobie kompaktowe rozwiązania bez rezygnacji z wygody. To inwestycja, która zadowoli zarówno prywatnych inwestorów, jak i deweloperów szukających atrakcyjnych rozwiązań na rynku mieszkaniowym.
🛠️ #projektdomu #ekonomicznydom #parterowy #przestrzeń #funkcjonalność #komfort #rodzinnydom #minimalizm
Kolekcja zawiera warianty domów w zabudowie bliźniaczej, szeregowej i jako projekty dwulokalowe. Polecamy zgrabne, funkcjonale projekty z potencjałem.














