Projekt domu Eco 08 to innowacyjny projekt domu, stworzony z myślą o rodzinach poszukujących przestronnego i funkcjonalnego miejsca do zamieszkania. Jego zgrabna bryła jest nie tylko estetyczna, ale również przekłada się na oszczędności zarówno podczas budowy, jak i późniejszej eksploatacji.
Nowoczesny projekt domu Eco 08 odzwierciedla najnowsze trendy w architekturze i dostosowuje się do potrzeb dzisiejszych rodzin. Przemyślane układy wnętrz, liczne funkcjonalne wnęki i staranne wykonanie to cechy wyróżniające ten projekt.
Projekt domu Eco 08 uwzględnia różne warianty garażu.
#projektdomu #nowoczesnydom #ekonomicznydom #funkcjonalność #przestrzeń #rodzinnydom #harmonia #oszczędności #architektura #ekologicznydom
Strefa dzienna tego nowoczesnego domu składa się z przestronnej i otwartej kuchni, która sąsiaduje ze spiżarnią, zapewniającą praktyczne rozwiązanie do przechowywania zapasów. Wspaniałym uzupełnieniem jest salon połączony z jadalnią, tworzący harmonijną przestrzeń, która bezproblemowo łączy się z tarasem. To idealne miejsce do relaksu i spędzania czasu z rodziną i przyjaciółmi. Dodatkowo, na parterze znajduje się dodatkowy pokój, który może pełnić funkcję gabinetu, pokoju dla seniora lub miejsca dla odwiedzających gości.
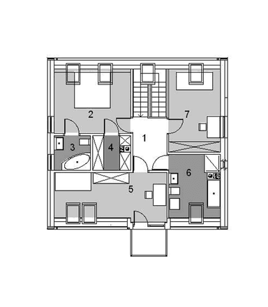
Na piętrze Eco 08 oferuje trzy wygodne sypialnie. Jedna z nich ma przylegającą łazienkę oraz garderobę, co stanowi dodatkową wygodę dla domowników. Kolejna sypialnia posiada uroczy balkon, który zapewnia możliwość cieszenia się świeżym powietrzem i pięknym widokiem.
Kolekcja zawiera warianty domów w zabudowie bliźniaczej, szeregowej i jako projekty dwulokalowe. Polecamy zgrabne, funkcjonale projekty z potencjałem.




















