Projekt domu jednorodzinnego Armanda XS to wygodny projekt domu jednorodzinnego z poddaszem, zapewniający funkcjonalność, estetykę i oszczędność. Ten piękny dom o prostej i przemyślanej konstrukcji został stworzony z myślą o 3-6 osobowej rodzinie, oferując elegancką formę i subtelne wykończenie.
Architektura domu jednorodzinnego Armanda XS to harmonijne połączenie tradycji z nowoczesnością i elegancji, z uwzględnieniem proporcji, estetyki i funkcjonalności. Projekt domu został również zaprojektowany jako energooszczędny, co przyczynia się do oszczędności i zrównoważonego stylu życia.
Budynek składa się z parteru i użytkowego poddasza, nieposiadającego piwnicy. Na parterze znajduje się przestronna strefa dzienna, składająca się z kuchni, jadalni i salonu, które są otwarte na taras i ogród. Kuchnia, w zależności od potrzeb, może być zamykana lub otwarta, a praktyczną spiżarnię stanowi dodatkowe udogodnienie.
Dom Armanda XS jest doskonale doświetlony zarówno od strony ogrodu, jak i z boku, co czyni go odpowiednim dla działek z różnym wjazdem - od północy, południa, wschodu lub zachodu.
Na parterze zaprojektowano także pokój, który może pełnić funkcję pokoju gościnnego lub gabinetu, łazienkę oraz pomieszczenie gospodarcze. W wiatrołapie znalazło się miejsce na dużą szafę wnękową, dodającą praktyczności.
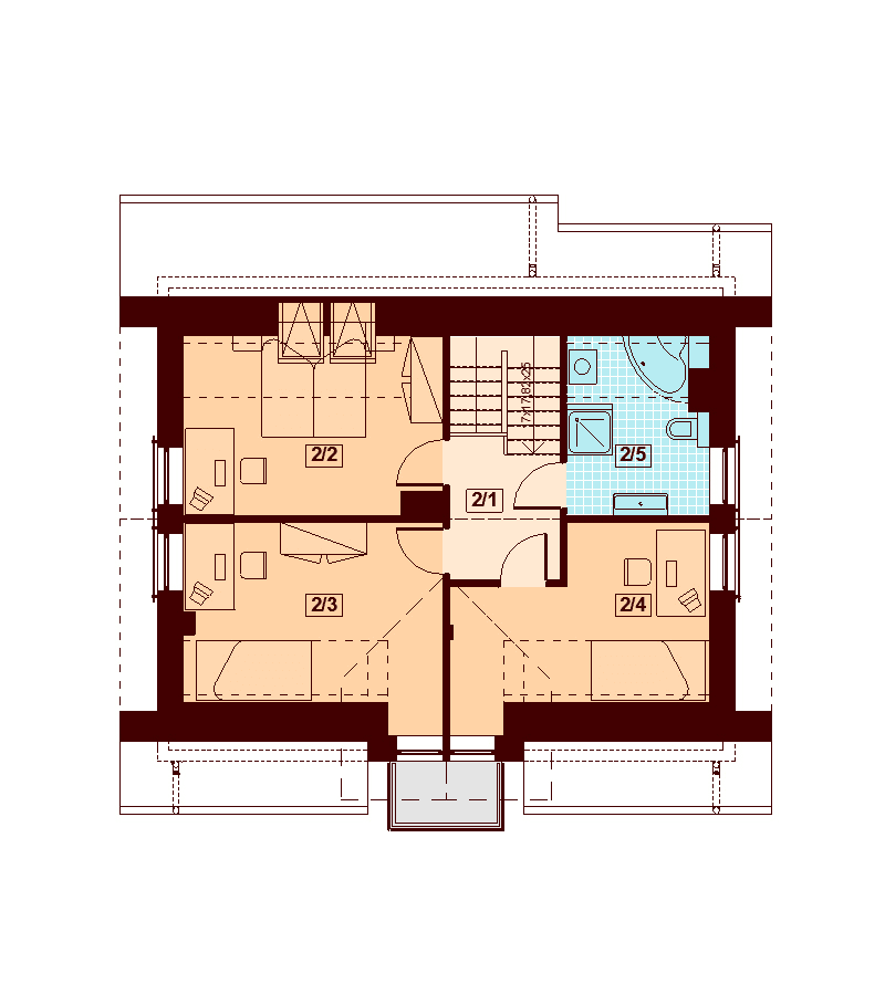
Na użytkowym poddaszu zaplanowano trzy pokoje i wygodną łazienkę. Wszystkie pomieszczenia zostały starannie rozplanowane, zapewniając wygodę i funkcjonalność dla domowników.
Projekty domów jednorodzinnych
















