Projektując dom Armanda XS BIS, duży nacisk został położony na atrakcyjny wygląd zewnętrzny, proporcje bryły budynku oraz optymalne doświetlenie i funkcjonalne rozmieszczenie pomieszczeń, zachowując jednocześnie prostotę konstrukcji i zwartość bryły domu.
Projekt domu Armanda XS BIS to idealny projekt domu, który oferuje funkcjonalność, piękno i oszczędność. Ten dom o kompaktowej bryle to doskonałe rozwiązanie dla 3-6 osobowej rodziny, charakteryzujące się prostą i ekonomiczną konstrukcją
Architektura domu to harmonijne połączenie tradycji z nowoczesnością, elegancji oraz dbałością o proporcje, estetykę i funkcjonalność. Projekt domu Armanda XS BIS został również zaprojektowany jako energooszczędny.
Budynek składa się z parteru i użytkowego poddasza, nieposiadającego piwnicy. Na parterze znajduje się przestronna strefa dzienna, składająca się z kuchni, jadalni i salonu otwartego na taras i ogród. Kuchnia, w zależności od potrzeb, może być zamknięta lub otwarta, a dodatkowym elementem jest pojemna spiżarnia. Schody w holu mogą być dostosowane do preferencji, tworząc ciekawy element architektoniczny i zwiększając przestrzeń dzienną, lub odizolowane ścianką działową od salonu. Dzięki odpowiedniemu doświetleniu, dom Armanda XS BIS doskonale pasuje na każdą działkę, niezależnie od orientacji geograficznej.
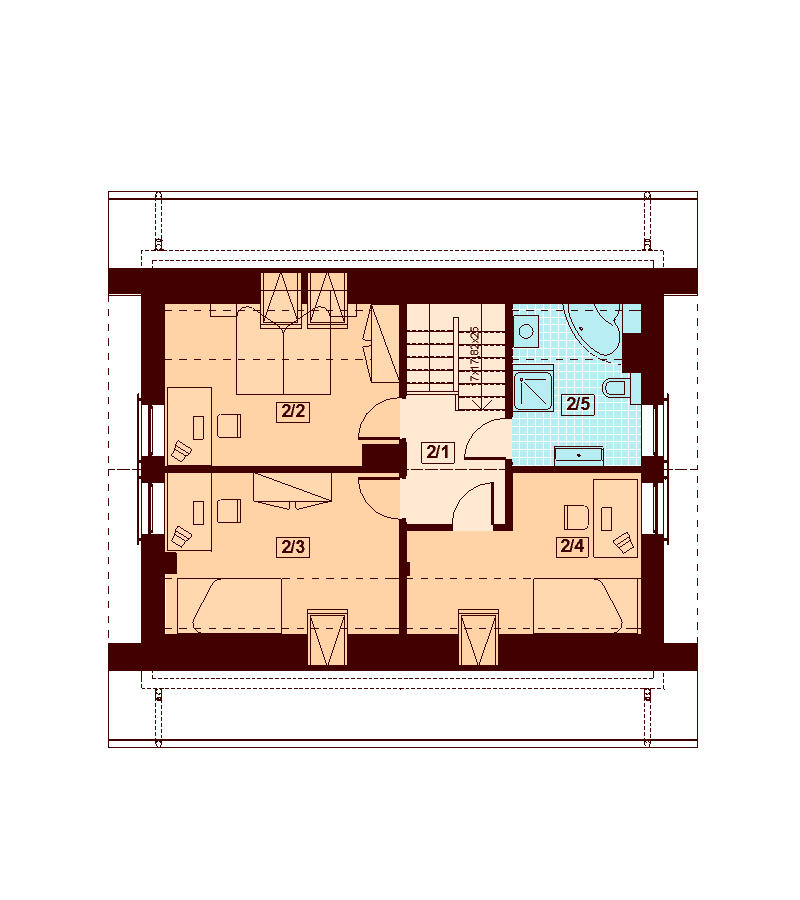
Na użytkowym poddaszu znajdują się trzy pokoje oraz wygodna łazienka. Wszystkie pomieszczenia zostały starannie rozplanowane, zapewniając wygodę i funkcjonalność dla mieszkańców.
Dostępne są również inne wersje tego projektu, takie jak Armanda XS z lukarną od strony elewacji frontowej, a także większe wersje domu, takie jak Armanda Mała BIS, Armanda Mała, Armanda, Armanda BIS i Belinda. Każdy z tych projektów cieszy się dużym uznaniem i popularnością wśród osób poszukujących atrakcyjnego, funkcjonalnego i ekonomicznego rozwiązania dla swojego domu.
Projekty domów jednorodzinnych



















