Projekt gotowy Karmelita Modern 2M to doskonały wybór dla osób poszukujących domu z poddaszem, popularnego projektu domu z dużym garażem, który łączy w sobie estetykę, funkcjonalność i komfort życia.
#ProjektDomu #DomZPoddaszem #NowoczesnyDesign
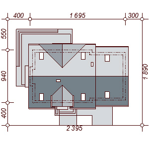
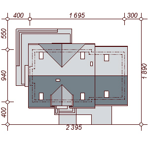
Karmelita Modern 2M to nowoczesny projekt domu, który cieszy się ogromną popularnością wśród 3-6 osobowych rodzin. Ten piękny i funkcjonalny budynek posiada elegancką formę oraz współczesną estetykę. Jest on dwukondygnacyjny, z parterem i użytkowym poddaszem, nieposiadającym piwnicy. Jednym z atutów tego domu jest duży dwustanowiskowy garaż.
Na parterze znajduje się przestronna strefa dzienna, składająca się z kuchni, która może być otwarta lub zamknięta w zależności od potrzeb, jadalni z urokliwym wykuszem oraz salonu, który bezpośrednio łączy się z tarasem i ogrodem. Dodatkowo, kuchnię uzupełnia praktyczna spiżarnia.
Na poddaszu znajdują się trzy pokoje, obszerna i wygodna łazienka, a także strych, który jest dostępny z półpiętra. Strych może pełnić rolę dodatkowego pokoju, siłowni lub sali kinowej. Na spoczniku schodów w przestrzeni strychu wydzielono miejsce na pralnię i garderobę, jednak istnieje możliwość innej aranżacji tej przestrzeni.
Podczas projektowania Karmelity Modern 2M szczególną uwagę zwrócono na atrakcyjny wygląd zewnętrzny, proporcjonalność bryły budynku oraz odpowiednie doświetlenie i funkcjonalne rozmieszczenie pomieszczeń, przy jednoczesnym zachowaniu prostoty konstrukcji i zwartości całego domu. Projekt uwzględnia również energooszczędność.
Projekty domów jednorodzinnych
























