Projekt domu Karmelita BIS 2M, to elegancki i funkcjonalny dom, dedykowany dla 3-6 osobowej rodziny. Oferuje on nowoczesną estetykę i piękną formę architektoniczną. Budynek jest dwukondygnacyjny, projekt domu z użytkowym poddaszem, bardzo dobrze zorganizownay układ funkcjonalny. Projekt domu wyposażony jest w dwustanowiskowy garaż.
Podczas projektowania Karmelity BIS 2M szczególną uwagę zwrócono na atrakcyjny wygląd zewnętrzny, harmonię bryły budynku oraz odpowiednie doświetlenie i funkcjonalne rozmieszczenie pomieszczeń, przy zachowaniu prostoty konstrukcji i zwartości całego domu. Projekt uwzględnia również energooszczędność.
Dostępna jest także wersja projektu z jednostanowiskowym garażem (Karmelita BIS), która oferuje równie atrakcyjne możliwości. Karmelita BIS 2M to niezawodny wybór dla tych, którzy poszukują projektu domu z poddaszem, cenionego za swój urok oraz oszczędność kosztów budowy.
#ProjektDomu #DomZPoddaszem #ElegancjaArchitektury
Na parterze znajduje się przestronna strefa dzienna, która składa się z kuchni, jadalni z urokliwym wykuszem oraz salonu, który otwiera się na taras i ogród. Do kuchni przylega praktyczna spiżarnia. Ponadto, na parterze zaprojektowano pokój, który może służyć jako gościnny lub gabinet, a także łazienkę, pomieszczenie gospodarcze, garaż oraz kotłownię, której dostęp jest możliwy z garażu, a także z wyjściem na ogród
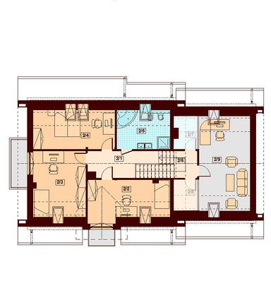
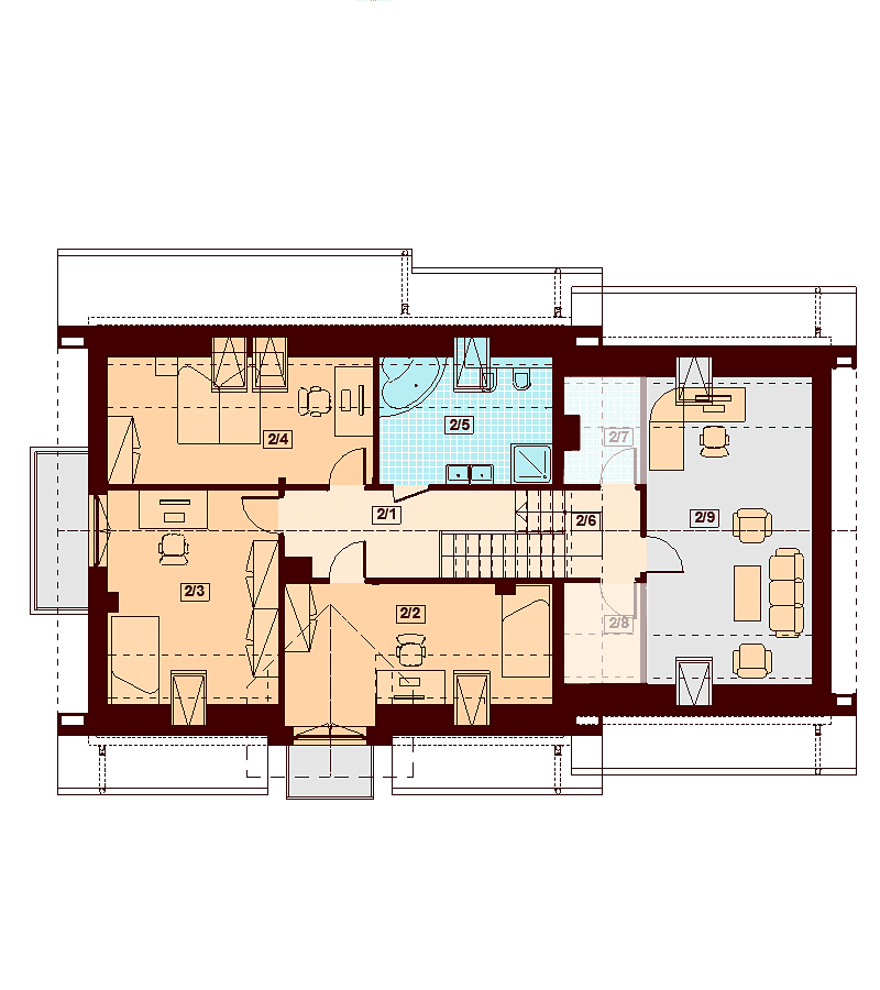
Na poddaszu znajdują się trzy pokoje, przestronna i wygodna łazienka, a także strych, dostępny z półpiętra. Może on pełnić rolę dodatkowego pokoju, siłowni lub sali kinowej. Przestrzeń nad schodami na strychu została przekształcona w miejsce na pralnię i garderobę.
Projekty domów jednorodzinnych























