Projekt Eco 15 wyróżnia się nie tylko estetyką, ale również funkcjonalnością, oferując przestrzeń, w której można wygodnie żyć i cieszyć się codziennym komfortem. To doskonały wybór dla rodzin poszukujących nowoczesnego i praktycznego domu do zabudowy jednorodzinnej dwu lokalowej w zabudowie szeregowej.
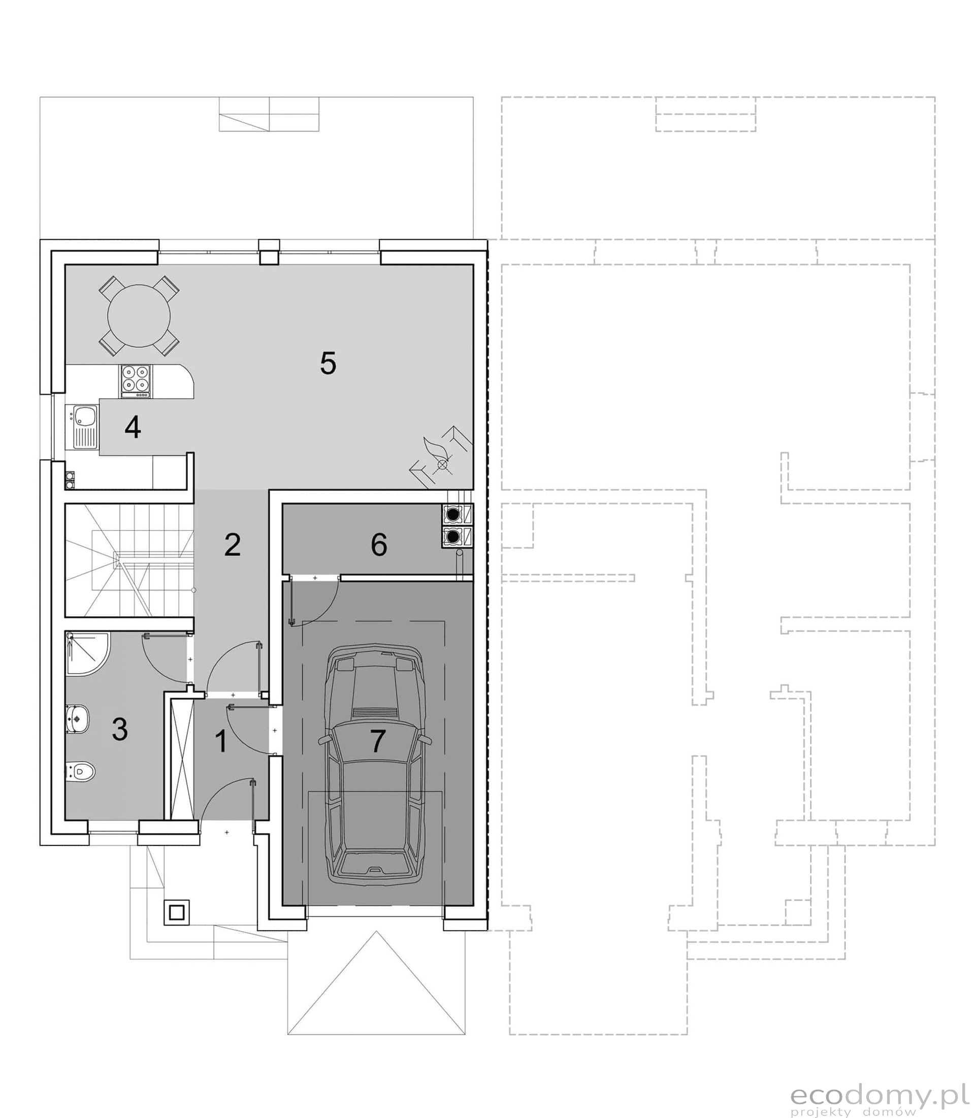
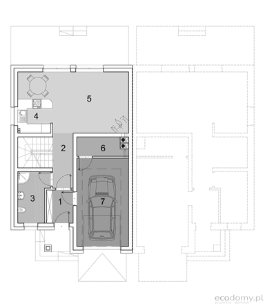
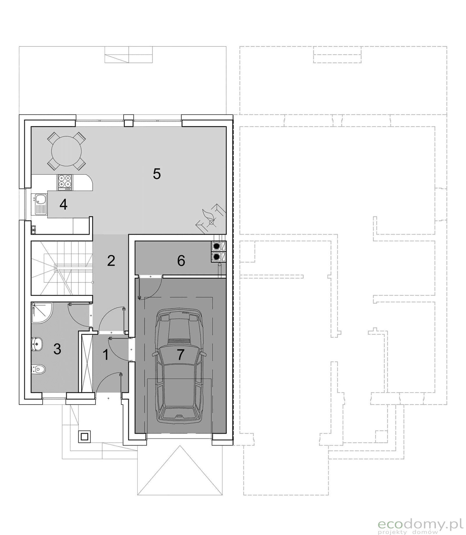
Na parterze domu znajduje się przestronny i doskonale doświetlony salon, dzięki dużym oknom wychodzącym na ogród. Salon ten łączy się harmonijnie z kuchnią, która oferuje wystarczającą przestrzeń dla zarówno zestawu wypoczynkowego, jak i jadalni. Kuchnia jest subtelnie oddzielona od jadalni przez półwysep kuchenny. Bezpośrednio przy wejściu do domu znajduje się kompaktowa łazienka, a także kotłownia, sąsiadująca bezpośrednio z garażem, co zapewnia dodatkowe możliwości gospodarcze. Przestrzeń pod schodami stanowi idealną okazję do wykorzystania.
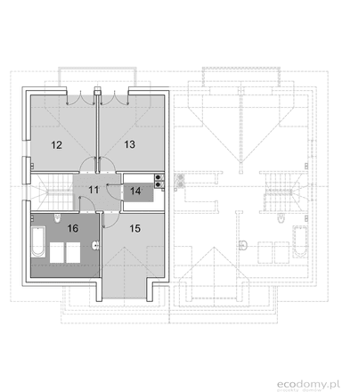
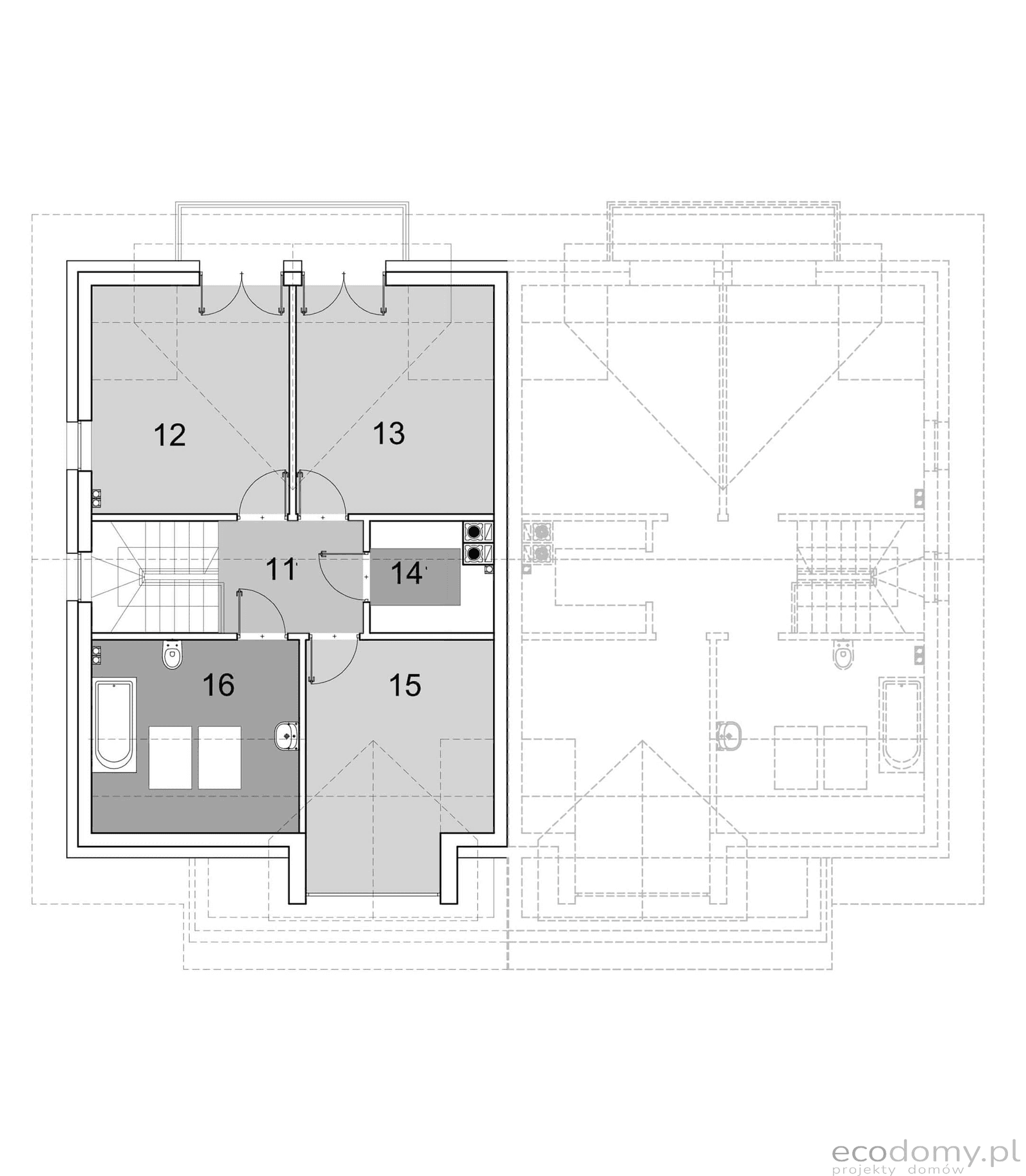
Na piętrze znajdują się dwa przestronne pokoje, które można łatwo dostosować do potrzeb rodziny z dziećmi. Dodatkowo, na tej kondygnacji znajduje się obszerna i doskonale doświetlona sypialnia, która sąsiaduje z garderobą oraz funkcjonalną łazienką.
Projekt Eco 15 to intrygujący projekt domu do zabudowy jednorodzinnej, idealny dla tych, którzy poszukują jednorodzinnego dwulokalowego rozwiązania w zabudowie szeregowej.
Kolekcja zawiera warianty domów w zabudowie bliźniaczej, szeregowej i jako projekty dwulokalowe. Polecamy zgrabne, funkcjonale projekty z potencjałem.





















