Projekt Noelia BIS skupia się na atrakcyjnym wyglądzie zewnętrznym, proporcjonalności bryły budynku, optymalnym doświetleniu i funkcjonalnym rozmieszczeniu pomieszczeń, jednocześnie zachowując prostotę konstrukcji i zwartość bryły domu.
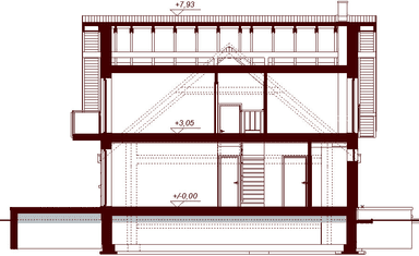
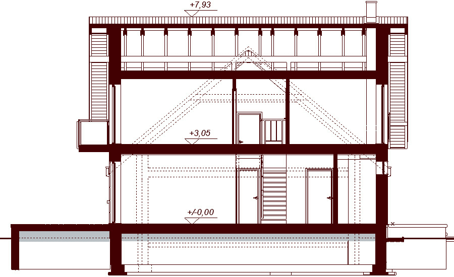
Noelia BIS to wyjątkowy projekt domu, który zachwyca swoją atrakcyjnością i funkcjonalnością. Przeznaczony dla 3-6 osobowej rodziny, ten dom o eleganckiej formie i nowoczesnej estetyce został starannie zaprojektowany, aby być prostym w wykonaniu i przystępnym cenowo. Dom ten jest parterowy z użytkowym poddaszem, niepodpiwniczony, z jednostanowiskowym garażem.
Projekt Noelia Bis to perełka projektowa, jest to gotowy projekt domu z poddaszem - jeden z ulubieńców i to badzo popularny.
Projekty domów jednorodzinnych

























