Projekt Darlena XL to dom kompaktowy, praktyczny, atrakcyjny, który przenosi funkcjonalność i estetykę na zupełnie nowy poziom. Przeznaczony dla rodzin o liczbie członków od 3 do 8, ten projekt wyróżnia się elegancką formą, nowoczesnym stylem i starannie przemyślaną konstrukcją. Dom Darlena XL to parterowy budynek z użytkowym poddaszem, pozbawiony piwnicy, z dwustanowiskowym garażem wewnątrz bryły budynku.
Na parterze znajduje się przestronna i wygodna strefa dzienna, składająca się z kuchni, która może być zamykana lub otwarta w zależności od potrzeb, słonecznej jadalni oraz salonu, który ma bezpośrednie wyjście na taras i ogród. Dzięki doskonałemu doświetleniu zarówno od strony ogrodu, jak i z boku od jadalni, dom ten doskonale sprawdzi się na działkach o dowolnym ustawieniu, niezależnie od kierunku wjazdu (północ, południe, wschód lub zachód).
Duży garaż w projekcie to atut, dodatkowo garaż ma wyjście do ogrodu, co umożliwia również przechowywanie narzędzi ogrodowych w kotłowni, dostępnej z garażu.
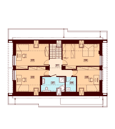
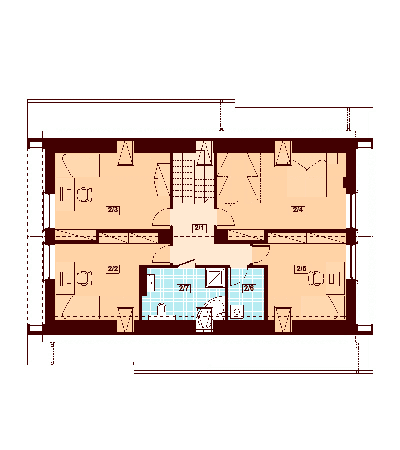
Na użytkowym poddaszu znajdują się cztery wygodne pokoje, w tym przestronna sypialnia rodziców, w której istnieje możliwość wydzielenia osobnej garderoby o dużym metrażu. W środkowej części poddasza znajduje się funkcjonalna łazienka z wanną i kabiną prysznicową oraz dodatkowe pomieszczenie, które może pełnić funkcję pralni lub suszarni, zapewniając wygodę gospodyni domu.
Proejkt Darlena XL to atrakcyjna propozycja projektu domu z poddaszem.
Projekty domów jednorodzinnych

























