Projekt domu MODULARNY D28 zawsze będzie przyciągał uwagę swoim niebanalnym i nienachalnym wyglądem.
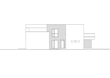
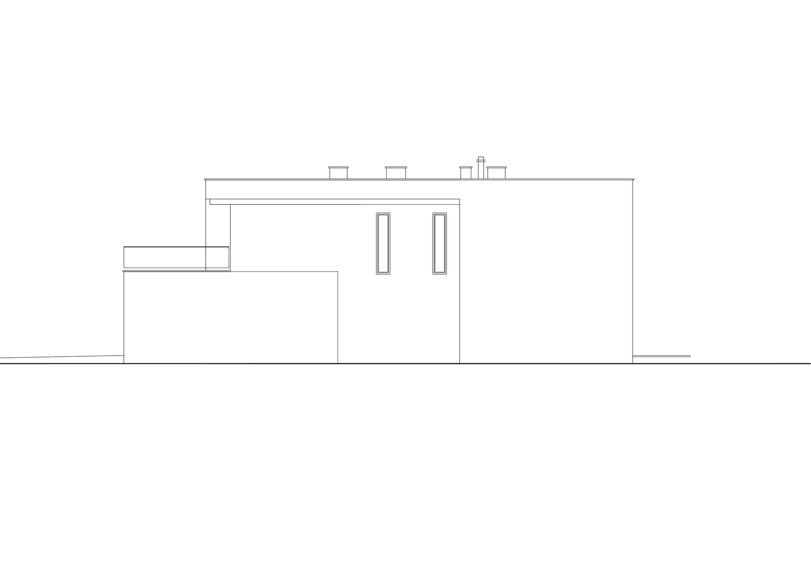
Projekt domu piętrowego MODULARNY D28 to kolejne osiągnięcie naszej pracowni, które zachwyca swoim potencjałem aranżacyjnym. Z zewnątrz może wydawać się pozornie prosty, ale jego bryła zdecydowanie nie należy do nudnych. Składa się z kilku oddzielnych modułów, które zostały pomysłowo połączone, tworząc spójną całość. Kształty zewnętrzne tego domu nie są przypadkowe; wręcz przeciwnie, widać w nich otwartość na nowoczesne trendy architektoniczne oraz dalekosiężność projektantów.
Wnętrze domu zostało starannie przemyślane pod względem funkcjonalności. Układ pomieszczeń sprzyja łatwej i szybkiej komunikacji. Oprócz przestronnego salonu z efektownym otwartym sufitem, który harmonijnie łączy się z wygodną jadalnią, znajduje się tutaj także cztery przestronne pokoje. Oczywiście, nie mogło zabraknąć dwóch łazienek, a także wydzielonej i bardzo praktycznej pralni oraz garderoby. Dodatkowo, dwustanowiskowy garaż oferuje dużo miejsca na przechowywanie. Całość tego projektu piętrowego obejmuje powierzchnię użytkową o wielkości 145,13 m².
Ze względu na swoje wymiary i atrakcyjny wygląd zewnętrzny, ten gotowy projekt domu dedykowany jest przede wszystkim Inwestorom posiadającym wąskie działki miejskie i podmiejskie.
MODULARNY D28 to projekt domu, który nie tylko doskonale wykorzystuje swoje możliwości aranżacyjne, ale także jest funkcjonalny i praktyczny. Jego unikalna bryła i elastyczność sprawiają, że jest atrakcyjnym wyborem dla inwestorów szukających nowoczesnego domu z potencjałem na wąską działkę.
Projekty domów piętrowych, domów z poddaszem i parterowych w nowoczesnej odsłonie. Porjekty domów nowoczesnych i energooszczędnych



















