Projektowanie domu SARATOGA 2M skupiło się na atrakcyjnym wyglądzie zewnętrznym, proporcjonalnej bryle budynku, odpowiednim doświetleniu oraz funkcjonalnym rozmieszczeniu pomieszczeń, jednocześnie zachowując prostotę konstrukcji i zwartość bryły domu.
Projekt ma potencjał. Istnieje również możliwość wyboru innych wersji tego projektu, takich jak SARATOGA bez garażu oraz SARATOGA 1M z jednostanowiskowym garażem.
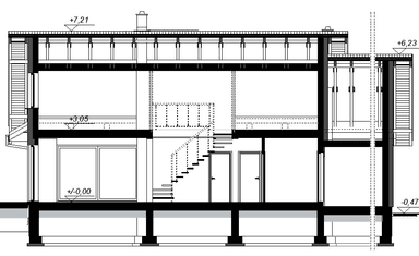
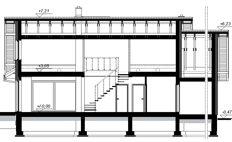
Gotowy projekt SARATOGA 2M to wyjątkowy dom z poddaszem do adaptacji, który oferuje funkcjonalny układ pomieszczeń. Projekt ten wyróżnia się nie tylko atrakcyjnym wyglądem i elegancką formą, ale także prostą i ekonomiczną konstrukcją. Dom ten, parterowy z gęstożebrowym stropem i strychem na poddaszu, jest idealnym rozwiązaniem dla 3-6 osobowej rodziny. Posiada dwustanowiskowy garaż i nie jest podpiwniczony.
Rzut parteru został starannie podzielony na strefę dzienną i strefę prywatną. Po lewej stronie domu, patrząc od wejścia, znajduje się przestronna strefa dzienna składająca się z kuchni, jadalni i salonu, który otwiera się na taras i ogród, a także posiada wygodny kominek. Kuchnia może być zamykana lub otwarta, w zależności od potrzeb. Dodatkowo, projekt uwzględnia spiżarnię jako uzupełnienie kuchni. Strefa prywatna składa się z trzech funkcjonalnych pokoi oraz wygodnej łazienki. W domu zaprojektowano również toaletę oraz garderobę z przejściem do garażu, za którym znajduje się pomieszczenie gospodarcze.
Projekty domów jednorodzinnych

























