Gotowy projekt domu jednorodzinnego KAMINERO Z WYKUSZEM to nowoczesny i stylowy dom z poddaszem, charakteryzujący się elegancką formą i ekonomiczną bryłą. Ten zgrabny dom jest idealnym rozwiązaniem dla 3-8 osobowej rodziny, oferując nie tylko estetykę, ale również funkcjonalność i przemyślaną konstrukcję.
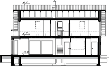
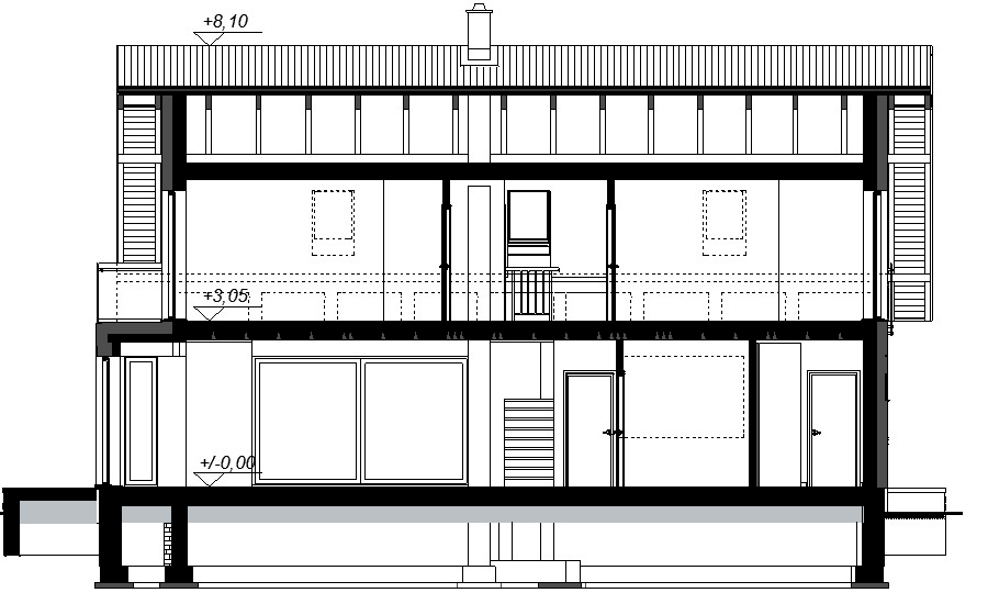
Budynek, będący parterowym domem z użytkowym poddaszem, prezentuje się reprezentacyjnie i przyciąga wzrok swoim atrakcyjnym wyglądem. Posiada dwustanowiskowy garaż, a także brak piwnicy. Na parterze znajduje się obszerna i komfortowa strefa dzienna, składająca się z kuchni, słonecznej jadalni z wykuszem oraz salonu otwartego na taras i ogród.
Dodatkowo, kuchnia została zaprojektowana z myślą o funkcjonalności i elastyczności, umożliwiając zamknięcie jej drzwiami przesuwnymi lub pozostawienie otwartej, tworząc jedną przestronną przestrzeń z jadalnią i salonem. Warto wspomnieć o spiżarni, która stanowi praktyczne uzupełnienie kuchni.
Na użytkowym poddaszu znajdują się cztery wygodne pokoje, w tym przestronna sypialnia rodziców, która ma możliwość wydzielenia osobnej, pojemnej garderoby. W centralnej części umieszczono funkcjonalną łazienkę z wanną i kabiną prysznicową
Projekty domów jednorodzinnych























