Projekt domu KAMINERO Z WYKUSZEM to gotowy dom jednorodzinny, który emanuje reprezentacyjnością i atrakcyjnym wyglądem. Jego funkcjonalność sprawia, że jest idealnym rozwiązaniem dla rodzin liczących od 3 do 8 osób. Ten elegancki dom o nowoczesnej estetyce posiada prostą, ale przemyślaną konstrukcję, co przekłada się na ekonomiczność budowy.
To nasz extradom z adaptacją do działki
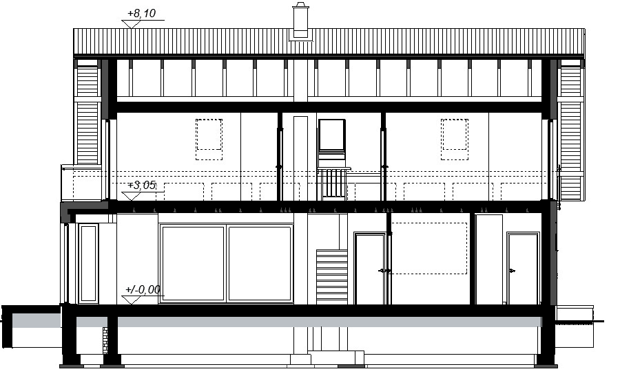
Budynek składa się z parteru oraz użytkowego poddasza i nie posiada piwnicy. Dwustanowiskowy garaż stanowi integralną część budynku. Na parterze znajduje się przestronna i wygodna strefa dzienna, która składa się z kuchni, słonecznej jadalni z wykuszem oraz salonu, który ma bezpośrednie wyjście na taras i ogród. Dzięki starannie zaplanowanemu doświetleniu zarówno z ogrodu, jak i z bocznego światła jadalni, dom doskonale dostosowuje się do każdej działki, niezależnie od kierunku wjazdu (północ, południe, wschód, zachód).
Kuchnia została zaprojektowana z myślą o elastyczności i funkcjonalności, dając możliwość zamknięcia jej drzwiami lub pozostawienia otwartą, tworząc jednolitą przestrzeń z jadalnią i salonem. Dodatkowym atutem jest spiżarnia, która jest dostępna zarówno z kuchni, jak i z wiatrołapu, ułatwiając przechowywanie większych zakupów spożywczych. Na parterze zaprojektowano także dodatkowy pokój, który może pełnić funkcję pokoju gościnnego lub gabinetu. Ponadto na tym poziomie znajduje się łazienka oraz duży garaż, który jest bezpośrednio połączony z wiatrołapem. Kotłownia jest dostępna z garażu i posiada wyjście na ogród.
Na użytkowym poddaszu znajdują się cztery wygodne pokoje, w tym przestronna sypialnia rodziców, w której istnieje możliwość wydzielenia osobnej, pojemnej garderoby. Centralnie usytuowana jest funkcjonalna łazienka z wanną i kabiną prysznicową. Dodatkowo na poddaszu znajduje się pralnia/suszarnia, zapewniająca wygodę gospodyni domu.
Projekt KAMINERO został starannie zaprojektowany, aby zapewnić atrakcyjny wygląd zewnętrzny, proporcjonalność bryły budynku oraz odpowiednie doświetlenie i funkcjonalność.
Projekty domów jednorodzinnych























