Projekt NewHouse 759 to nowoczesny dom z poddaszem użytkowym i charakterystycznym dachem dwuspadowym. Zaprojektowany z myślą o komforcie i funkcjonalności, ten elegancki dom oferuje przestronne wnętrza, idealne do życia dla rodziny.
Wizualnie imponujący, dom NewHouse 759 wyróżnia się swoją nowoczesną formą i starannie zaplanowanym układem pomieszczeń. Jego minimalistyczny design doskonale harmonizuje z otoczeniem, tworząc spójny i estetyczny wygląd.
Na parterze znajduje się przestronny salon, który stanowi centralne miejsce spotkań i integracji. Połączony z jadalnią i kuchnią, tworzy strefę otwartą, sprzyjającą wspólnemu spędzaniu czasu. Dodatkowo, na tym poziomie znajduje się również gabinet, który może pełnić rolę przestrzeni do pracy lub jako dodatkowa sypialnia dla gości.
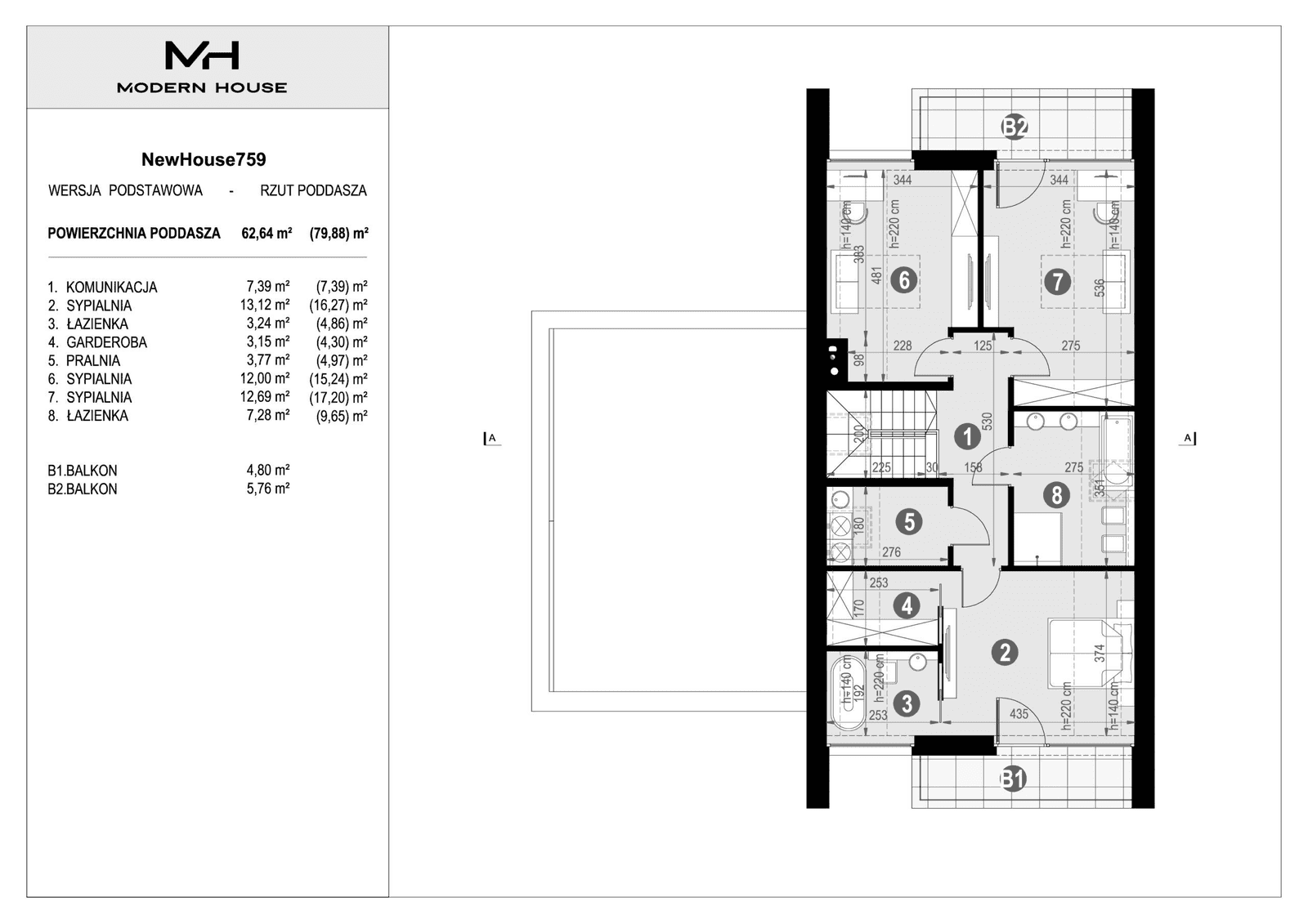
Na piętrze znajdują się trzy sypialnie, które zapewniają prywatność i komfort odpoczynku. Duże okna dostarczają naturalne światło do wnętrza, tworząc przyjemną atmosferę. Ponadto, na poddaszu użytkowym istnieje możliwość aranżacji dodatkowej przestrzeni według indywidualnych potrzeb, np. jako dodatkowy pokój dla dzieci, bibliotekę lub pokój rekreacyjny.
Projekt NewHouse 759 uwzględnia również praktyczne aspekty codziennego życia. Dwustanowiskowy garaż zapewnia bezpieczne i wygodne miejsce do przechowywania samochodów. Ponadto, przestronna garderoba oraz pomieszczenia gospodarcze umożliwiają sprawną organizację przestrzeni.
Projekt domu nowoczesnego NewHouse 759 to perełka projektowa i jeden z najciekawszych projektów domów z poddaszem w nowoczesnym wydaniu i z tarasem nad garażem.
Nowoczesne projekty domów























