Projekt gotowy to uniakt! STYLOWY D47 to wyjątkowy projekt domu, który łączy nowoczesny design, funkcjonalność i praktyczność w niewielkich wymiarach. Jego unikalna rama nadaje mu charakterystyczny wygląd, przyciągający uwagę i wyróżniający się spośród innych domów. To doskonała propozycja dla osób poszukujących małego, nowoczesnego domu o estetycznym wykończeniu i wygodnym układzie wnętrz.
- Na parterze znajduje się przestronny salon połączony z jadalnią oraz wydzielona kuchnia z praktyczną spiżarnią. Z wiatrołapu przechodzi się przez garderobę do jednostanowiskowego garażu oraz pomieszczenia technicznego, które posiada również osobne wejście z zewnątrz. Centralną część domu stanowi korytarz, z którego po prawej stronie znajdują się schody prowadzące na piętro, a także łazienka oraz pokój, który może spełniać funkcję gabinetu lub dodatkowej sypialni.
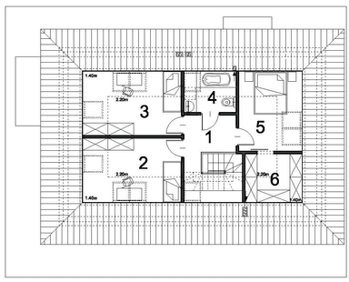
- Na poddaszu zaplanowano strefę nocną składającą się z trzech pokoi. Sypialnia gospodarzy wyposażona jest w garderobę, a łazienka jest dostępna dla wszystkich mieszkańców na tym poziomie.
Elewacja budynku wyróżnia się połączeniem bieli i szarości, które harmonijnie komponują się z kamienną okładziną ścienną, dodając elegancji i stylu całej konstrukcji.
Projekt STYLOWY D47 to nowoczesny i kompaktowy dom z poddaszem użytkowym, charakteryzujący się zwartą bryłą budynku oraz charakterystyczną ramą, która otacza całą konstrukcję
Projekty domów piętrowych, domów z poddaszem i parterowych w nowoczesnej odsłonie. Porjekty domów nowoczesnych i energooszczędnych



















