PROJEKT DOMU Z PODDASZEM I DACHEM DWUSPADOWYM to PROJEKT UROCZY D44 to projekt niewielkiego domu z parterem i poddaszem użytkowym, zapewniający funkcjonalność i komfort dla 4-5 osobowej rodziny. Ten dom charakteryzuje się również przystępną ceną budowy i dwuspadowym dachem. Perełka projektowa domu z kolekcji dom tani w budowie.
Na parterze znajduje się przestronny salon z wyjściem na zewnętrzny taras, który jest połączony z kuchnią, tworząc otwartą przestrzeń.
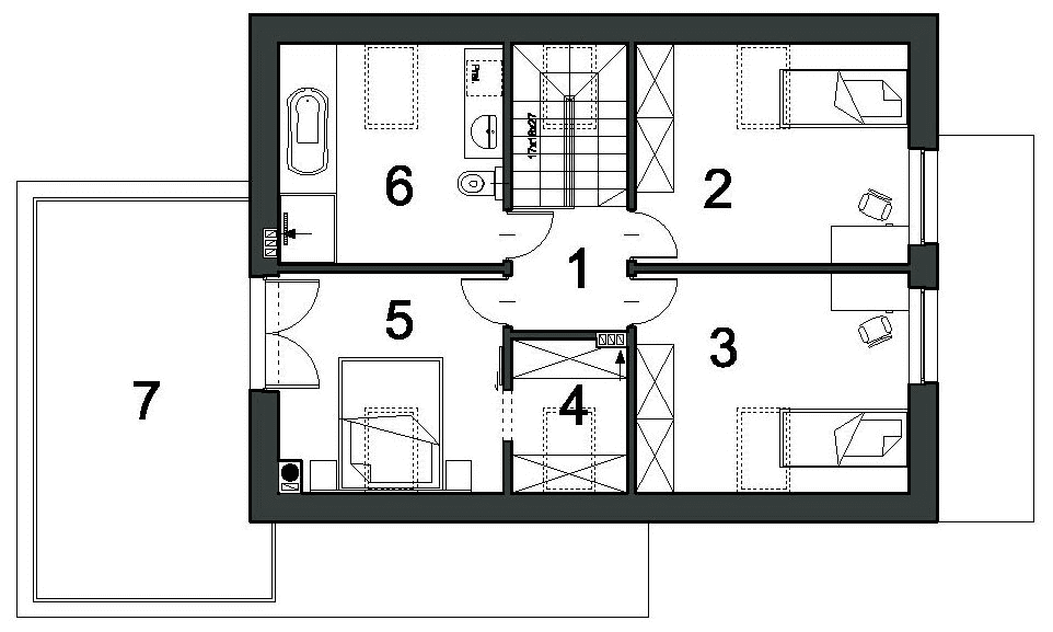
Na poddaszu znajdują się trzy pokoje, w tym sypialnia gospodarzy z przyległą garderobą i wyjściem na balkon. Duża łazienka wyposażona w wannę i prysznic zapewnia wygodę użytkowania dla mieszkańców.
Budynek UROCZY D44 ma prostą bryłę z dwuspadowym dachem. Elewacja domu utrzymana jest w kolorze białym z drewnianymi wstawkami oraz szarym kolorem w strefie wejścia, co nadaje mu uroku i harmonii.
Ten projekt jest dedykowany inwestorom, którzy mają ograniczony budżet budowy, jednocześnie szukającym oszczędności na etapie eksploatacji. UROCZY D44 to doskonała propozycja dla tych, którzy pragną mieć kompaktowy dom o atrakcyjnym wyglądzie i funkcjonalnym układzie, bez nadmiernego obciążenia finansowego.
Projekty domów piętrowych, domów z poddaszem i parterowych w nowoczesnej odsłonie. Porjekty domów nowoczesnych i energooszczędnych














