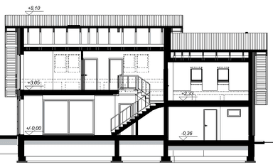
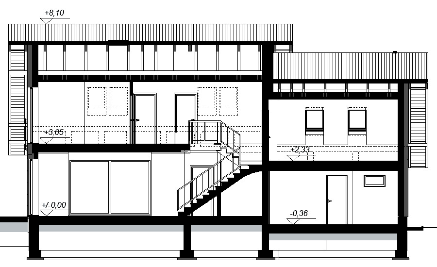
Projekt TORINA BIS 2M to doskonały projekt domu, który łączy w sobie piękno, funkcjonalność i przemyślaną konstrukcję. Ten elegancki i nowoczesny budynek, składający się z parteru i użytkowego poddasza, stanowi idealne miejsce dla rodzin liczących od 3 do 6 osób. Dom nie jest podpiwniczony i posiada dwustanowiskowy garaż.
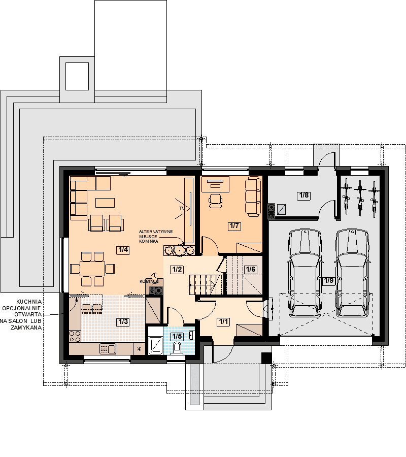
Na parterze znajduje się komfortowa i przestronna strefa dzienna, składająca się z kuchni, jadalni oraz salonu, który bezpośrednio otwiera się na taras i ogród. Kuchnia może być dostosowana do indywidualnych potrzeb, umożliwiając jej otwarcie lub zamknięcie w zależności od preferencji. Na parterze zaprojektowano również pokój, który może służyć jako pokój gościnny, gabinet lub przestrzeń dla najstarszego członka rodziny, a także łazienkę i garaż, który bezpośrednio łączy się z wiatrołapem. Kotłownia jest dostępna z garażu i posiada wyjście na ogród, co umożliwia jej wykorzystanie jako miejsca przechowywania narzędzi ogrodowych. W wiatrołapie znajduje się również miejsce na szafę.
Na użytkowym poddaszu znajdują się trzy wygodne pokoje oraz funkcjonalna łazienka z wanną, kabiną prysznicową i oddzieloną przestrzenią na pralnię lub suszarnię. Strych jest dostępny z półpiętra i może być przystosowany na dodatkowy pokój, garderobę, siłownię, saunę lub salę kinową. Istnieje również możliwość podziału strychu na kilka pomieszczeń o różnych funkcjach.
Projektowanie domu TORINA BIS 2M skupiło się na atrakcyjnym wyglądzie zewnętrznym, proporcjach budynku oraz odpowiednim doświetleniu i funkcjonalnym rozmieszczeniu pomieszczeń, przy jednoczesnym zachowaniu prostoty konstrukcji i zwartości bryły domu.
Projekty domów jednorodzinnych



























