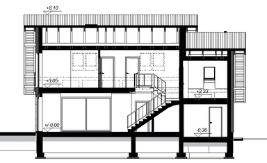
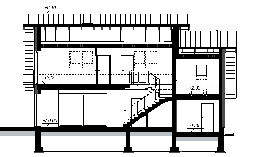
Projekt TORINA BIS to piękny i wyjątkowo funkcjonalny dom, idealny dla rodzin składających się z 3-6 osób. Ten projekt charakteryzuje się elegancką formą i nowoczesną estetyką, przy jednoczesnym zachowaniu prostoty i ekonomiczności w dokładnie przemyślanej konstrukcji. Dom jest parterowy z użytkowym poddaszem, bez piwnicy, i posiada jednostanowiskowy garaż.
Na parterze znajduje się komfortowa i przestronna strefa dzienna, składająca się z kuchni, jadalni i salonu, który bezpośrednio wychodzi na taras i ogród. Kuchnia może być dostosowana do indywidualnych potrzeb, z możliwością otwarcia lub zamknięcia. Dzięki oświetleniu zarówno od strony ogrodu, jak i bocznym oknom przy jadalni, dom doskonale wpasowuje się na działkę z wjazdem od północy, południa, wschodu lub zachodu. Dodatkowo na parterze znajduje się pokój, który może pełnić rolę pokoju gościnnego, gabinetu lub sypialni dla najstarszego członka rodziny.
Na poddaszu znajdują się trzy wygodne pokoje oraz funkcjonalna łazienka z wanną, kabiną prysznicową oraz wydzieloną przestrzenią na pralnię lub suszarnię. Strych dostępny jest z półpiętra, a jego przestrzeń może być wykorzystana jako dodatkowy pokój, garderoba, siłownia, sauna lub sala kinowa. Istnieje również możliwość podziału strychu na kilka pomieszczeń o różnych funkcjach.
W procesie projektowania budynku TORINA BIS szczególną uwagę zwrócono na atrakcyjny wygląd zewnętrzny, proporcje bryły budynku oraz odpowiednie doświetlenie i funkcjonalne rozmieszczenie pomieszczeń, zachowując jednocześnie prostotę konstrukcji i kompaktowość domu.
Projekty domów jednorodzinnych

























