Projekt Torina mała 2m to popularny i doceniany projekt domu.
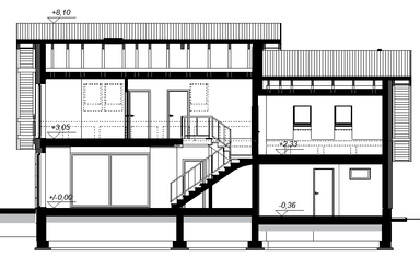
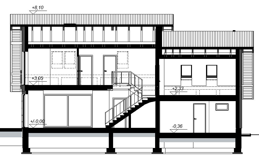
Projekt domu z poddaszem i garażem dwustanowiskowym, o nazwie "TORINA MAŁA 2M", jest popularnym i atrakcyjnym rozwiązaniem dla rodzin składających się z 3-6 osób. Ten elegancki i nowoczesny dom charakteryzuje się prostą, ale przemyślaną konstrukcją, co przekłada się na jego funkcjonalność i przystępną cenę. Budynek składa się z parteru oraz użytkowego poddasza, nieposiadającego piwnicy, z dodatkowo dołączonym garażem dwustanowiskowym.
W przypadku projektu TORINA MAŁA 2M szczególną uwagę zwrócono na atrakcyjny wygląd zewnętrzny, proporcjonalność bryły budynku, odpowiednie doświetlenie i funkcjonalne rozmieszczenie pomieszczeń, zachowując jednocześnie prostotę konstrukcji i zwartość domu. Projekt ten został również zaprojektowany z myślą o oszczędzaniu energii.
Na parterze znajduje się przestronna strefa dzienna, która obejmuje kuchnię, jadalnię i salon, który otwiera się na taras i ogród. Kuchnia może być zamykana lub otwarta, w zależności od preferencji. Dzięki oświetleniu zarówno od strony ogrodu, jak i od strony jadalni, dom doskonale pasuje do działki z wjazdem od północy, południa, wschodu lub zachodu. Dodatkowo na parterze znajduje się pokój, który może pełnić funkcję pokoju gościnnego, gabinetu lub sypialni dla starszego członka rodziny, a także łazienka i garaż, który jest bezpośrednio połączony z wiatrołapem. Wiatrołap zapewnia również dostęp do kotłowni, która może pełnić funkcję miejsca przechowywania narzędzi ogrodowych. Przewidziano również wnękową szafę w wiatrołapie.
Na poddaszu znajdują się trzy wygodne pokoje oraz funkcjonalna łazienka z wanną, kabiną prysznicową i pralką. Dostęp do strychu jest możliwy z półpiętra i można go zaadaptować na dodatkowy pokój, garderobę, pralnię, siłownię, saunę lub salę kinową. Istnieje również możliwość podziału strychu na kilka pomieszczeń o różnych funkcjach.
Projekty domów jednorodzinnych



























