Wąski D9 to projekt domu, który łączy nowoczesny styl z elegancją. Gotowy dom piętrowy z płaskim dachem. Jego przemyślane wnętrza, przestronność i dostęp do tarasów oraz balkonów sprawiają, że jest to idealne miejsce dla rodziny, która ceni sobie wygodę i komfort życia.
Projekt "Elegancki Parterowy" to nowoczesny dom z płaskim dachem, idealnie przystosowany do wąskiej działki i przeznaczony dla 4-5 osobowej rodziny. Jego prosta bryła budynku, połączona z drewnianą i białą elewacją oraz dużymi przeszkleniami, tworzy efektowny dom, który przyciąga uwagę swoją nowoczesną elegancją i optymalną funkcjonalnością wnętrz.
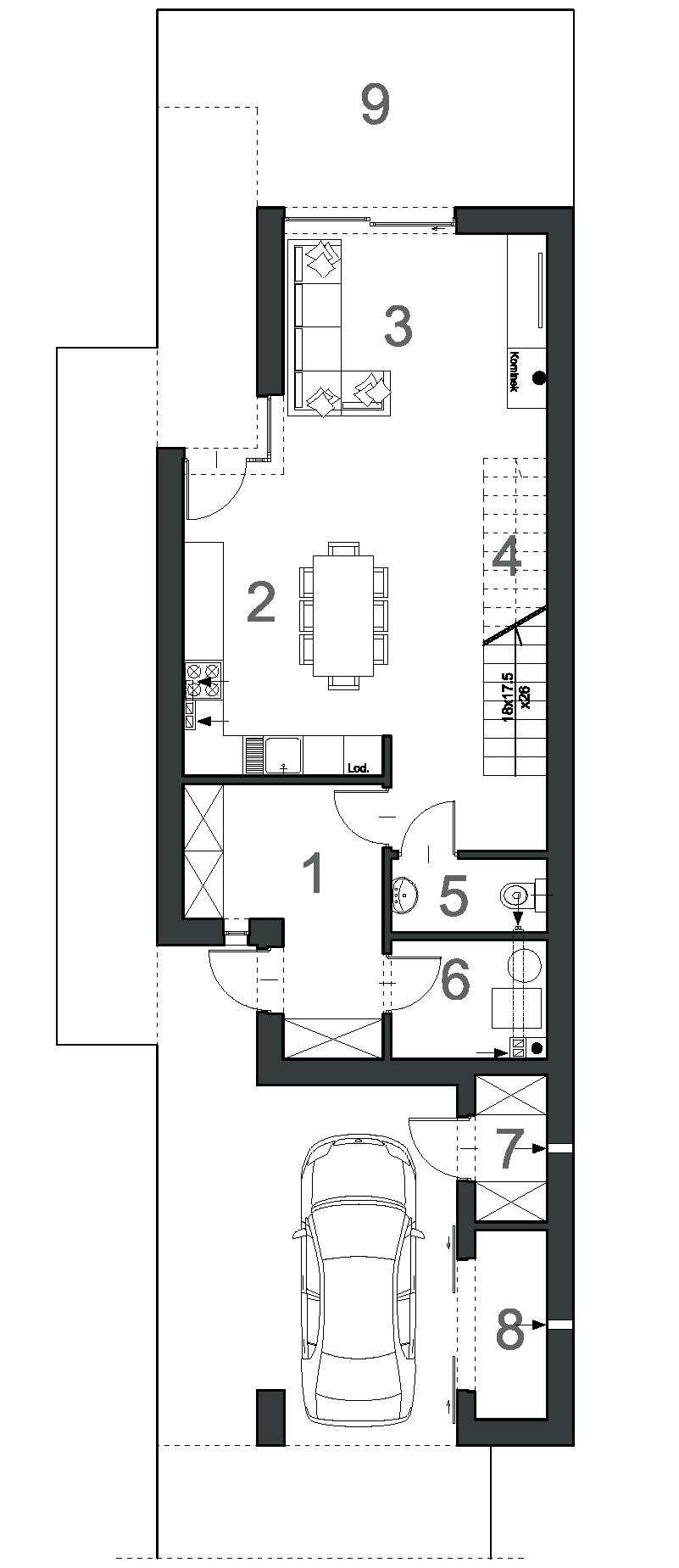
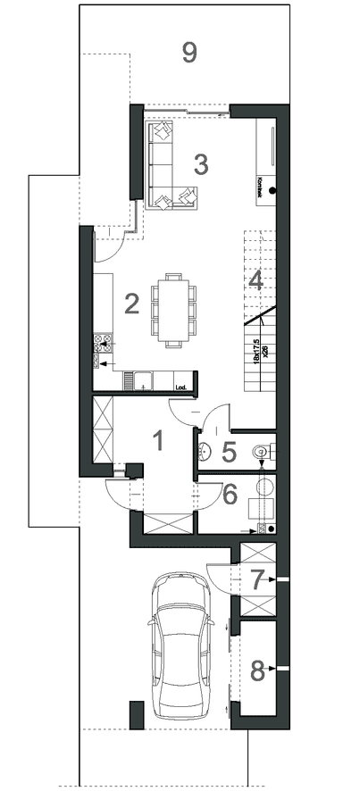
Na parterze zaprojektowano otwartą kuchnię, która harmonijnie łączy się z przestronnym salonem i prowadzi na duży drewniany taras, skierowany w stronę ogrodu. W tej części domu znajdują się także schody prowadzące na piętro. Dodatkowo, na parterze znajduje się duża garderoba w postaci wiatrołapu oraz pomieszczenie techniczne, które pełni funkcję kotłowni i toalety. Pomimo braku tradycyjnego garażu, dom posiada zadaszone miejsce parkingowe na jeden samochód, a także dostępne z zewnątrz pomieszczenie gospodarcze i schowek.
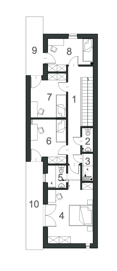
Na piętrze znajdują się trzy pokoje dla dzieci, z przypisaną do nich toaletą i prysznicem. Jeden z pokoi posiada również duży balkon z konstrukcją stalową. Dodatkowo, dla gospodarzy zaprojektowano osobiste azylem w postaci sypialni, połączonej z oddzielną łazienką, oraz wyjściem na duży balkon.
Projekty domów piętrowych, domów z poddaszem i parterowych w nowoczesnej odsłonie. Porjekty domów nowoczesnych i energooszczędnych


















