Gotowy projekt domu to perełka projektowa. Unikat! Wariant I projektu domu KUBICZNY D30 to wyjątkowe połączenie inspiracji klasykami modernizmu i indywidualnością współczesnej prostoty. Naszym priorytetem było stworzenie domu, który emanuje pięknem i oryginalnością, jednocześnie zapewniając przyszłemu właścicielowi niezwykłe poczucie indywidualizmu i komfortu mieszkaniowego.
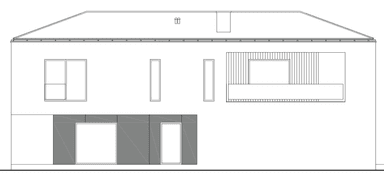
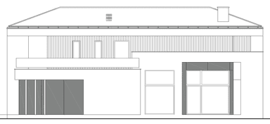
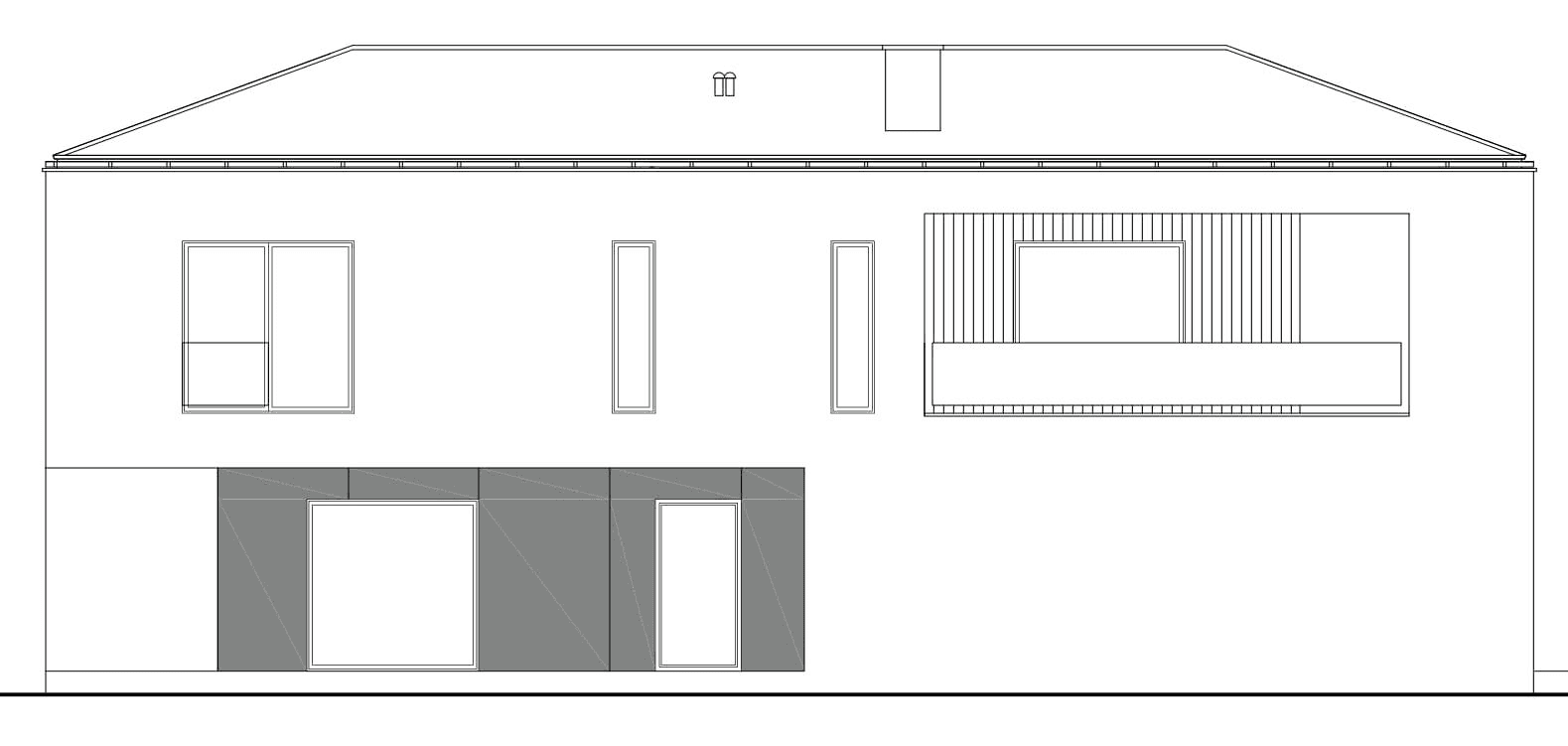
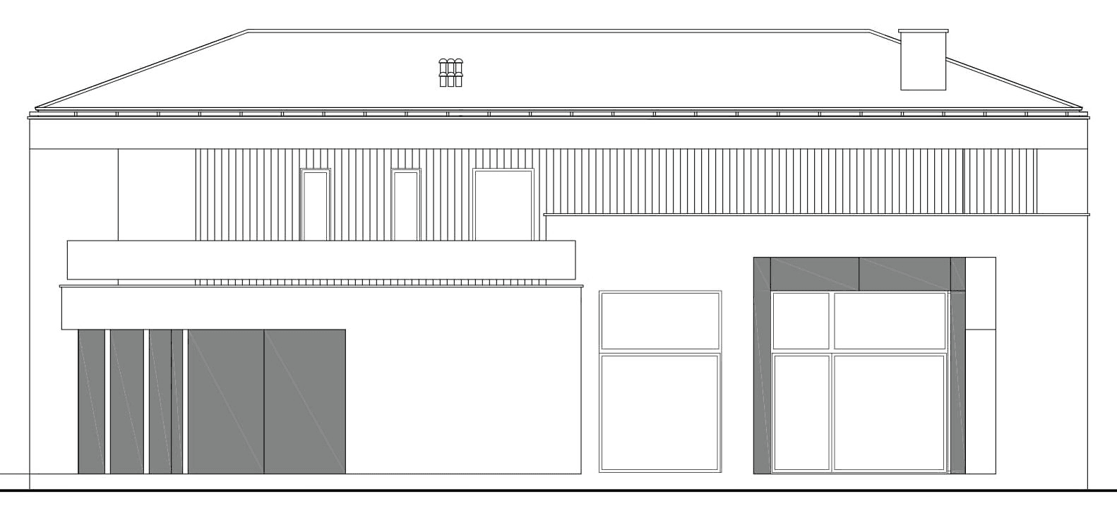
Dom KUBICZNY D30 WARIANT I posiada dwie kondygnacje zamknięte w modularnej, prostokątnej bryle, wzbogacone dużymi przeszkleniami, które doskonale wpuszczają naturalne światło i tworzą harmonijną relację z otaczającym ogrodem. Wnętrze zostało starannie zaprojektowane, uwzględniając funkcjonalny układ pomieszczeń. Liczne przestrzenie otwarte na siebie powiększają wrażenie przestronności.
Mieszkańcy domu KUBICZNY D30 WARIANT I, oprócz salonu z podwyższoną jadalnią (osiągającą 4 metry wysokości) i kuchnią, na parterze będą mieć dostęp do pokoju gościnnego, łazienki z WC, schowka pod schodami oraz przestronnego pomieszczenia technicznego z oddzielnym wejściem z zewnątrz.
Na piętrze znajdują się trzy sypialnie, garderoba oraz pralnia, która odciąża dwie górne łazienki od pralki, suszarki i kosza na brudne ubrania. Dodatkowo, z tarasu rozciąga się przepiękny, duży widok na teren przed frontem domu, a także na ogród przylegający do lewej i tylnej elewacji.
Budynek KUBICZNY D30 WARIANT I doskonale wpisuje się w przestrzeń dużych działek, ale równie łatwo można go dostosować do mniejszych i węższych powierzchni.
Projekty domów piętrowych, domów z poddaszem i parterowych w nowoczesnej odsłonie. Porjekty domów nowoczesnych i energooszczędnych






















