Projekt domu BK-6 to minimalistyczny projekt piętrowego domu, który charakteryzuje się oszczędnością zarówno w budowie, jak i późniejszej eksploatacji. Ten kompaktowy dom z dwuspadowym dachem jest idealny dla 4-5 osobowej rodziny, oferując jednocześnie wygodę i funkcjonalność.
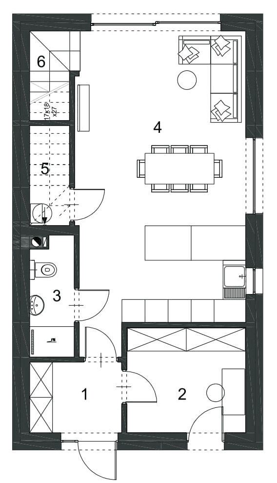
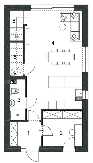
Wejście do domu prowadzi przez wiatrołap, który pełni również funkcję pokoju lub gabinetu, dostosowując się do indywidualnych potrzeb mieszkańców. Centralną część domu zajmuje aneks kuchenny, który harmonijnie łączy się z jadalnią i salonem, a schody prowadzą na piętro. W pobliżu aneksu kuchennego znajduje się łazienka, a obok niej pomieszczenie techniczne. Na piętrze zaprojektowano trzy pokoje oraz ogólnodostępną łazienkę. Przy schodach znajduje się pralnia, zapewniając wygodę w codziennych czynnościach domowych.
Projekt domu BK-6 to propozycja dla tych, którzy szukają kompaktowego, ekonomicznego i wygodnego domu dla swojej rodziny. Mimo niewielkich rozmiarów, ten piętrowy dom oferuje praktyczne rozwiązania i dobrze zorganizowaną przestrzeń, spełniając potrzeby codziennego życia.
Tynkami cienkowarstwowymi wykończono elewację domu, nadając mu elegancki wygląd w kolorze białym. Stolarka okienna i drzwiowa, a także balustrady, utrzymane zostały w czarnym kolorze, tworząc kontrast i dodając mu nowoczesnego charakteru.
Projekty domów piętrowych, domów z poddaszem i parterowych w nowoczesnej odsłonie. Porjekty domów nowoczesnych i energooszczędnych

















