Projekt gotowy SANTIA BIS to nowa odsłona cenionego od lat projektu Santia, który cieszy się dużą popularnością. Ten prosty, lubiany i tani w budowie dom został zaprojektowany z myślą o rodzinach składających się od 3 do 6 osób. Elegancka forma i nowoczesna estetyka idą w parze z prostą, ale przemyślaną konstrukcją.
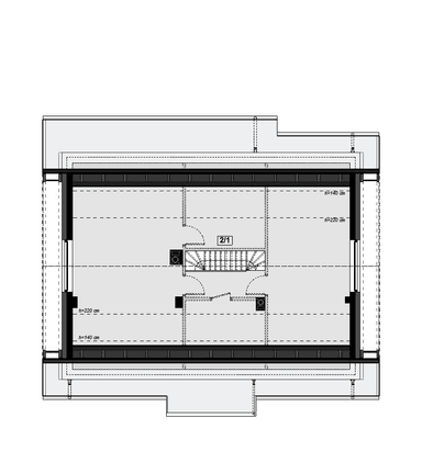
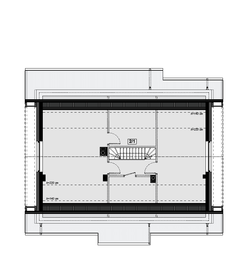
SANTIA BIS to dom parterowy z gęstożebrowym stropem i poddaszem użytkowym. Nie posiada piwnicy ani garażu, co przekłada się na niższe koszty budowy. Na parterze znajduje się wyraźny podział na strefę dzienną i prywatną. Po lewej stronie znajduje się przestronna strefa dzienna, składająca się z kuchni, jadalni i salonu, który posiada wyjście na taras i ogród oraz urokliwy kominek. Dodatkowo, kuchnia została wzbogacona o spiżarnię. Strefa prywatna obejmuje trzy dostępne pokoje oraz wygodną łazienkę.
Projekt SANTIA BIS skupia się na atrakcyjnym wyglądzie zewnętrznym, proporcjonalności bryły budynku oraz odpowiednim doświetleniu i funkcjonalności wnętrz, przy zachowaniu prostoty konstrukcji i kompaktowej formy domu. Dom ten został również zaprojektowany jako energooszczędny.
Dostępne są także wersje projektu z garażem: SANTIA BIS 1M i SANTIA BIS 2M, które spełniają różne potrzeby i preferencje. SANTIA BIS to projekt domu tani w budowie, który z pewnością zachwyci Cię swoim prostym urokiem i funkcjonalnością.
Projekty domów jednorodzinnych

























