Projekt DIONA MAŁA BIS to tani w budowie projekt domu z poddaszem, usytuowany szczytowo i przeznaczony dla 3-6 osobowej rodziny. Ten funkcjonalny dom charakteryzuje się prostą i przemyślaną konstrukcją, piękną formą oraz współczesną estetyką. Jest to budynek parterowy z użytkowym poddaszem, nieposiadający piwnicy, z jednostanowiskowym garażem.
Dostępne są również inne wersje tego projektu, takie jak Diona Mała (bez garażu, z dodatkowym pokojem/gabinetem), Diona (większa wersja) oraz Diona BIS (rozszerzona wersja).
Na parterze znajduje się przestronna strefa dzienna, składająca się z kuchni, słonecznej jadalni oraz salonu, które są otwarte na taras i ogród. Kuchnia może być dostosowana do indywidualnych potrzeb i może być zamykana lub otwarta. Dzięki odpowiedniemu doświetleniu strefy dziennego, dom DIONA MAŁA BIS nadaje się na każdą działkę, niezależnie od kierunku wjazdu (północ, południe, wschód lub zachód).
Dodatkowo, na parterze zaprojektowano łazienkę oraz duże pomieszczenie gospodarcze (kotłownię), które jest dostępne z holu i ma wyjście na ogród, co umożliwia wykorzystanie go także jako miejsce składowania narzędzi ogrodowych. W wiatrołapie przewidziano miejsce na dużą szafę wnękową, a garaż ma wygodne wejście bezpośrednio do wiatrołapu.
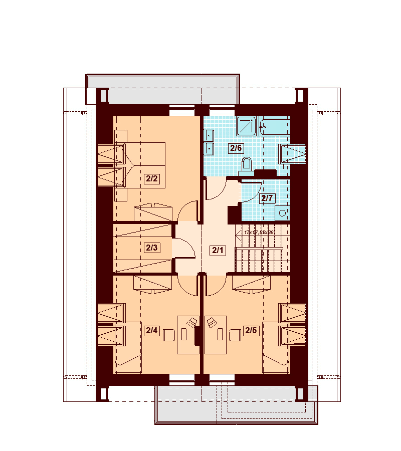
Na poddaszu znajdują się trzy pokoje, wygodna łazienka, pralnia/suszarnia oraz garderoba. Architektura domu DIONA MAŁA BIS łączy w sobie tradycję z nowoczesnością i elegancją, przy zachowaniu proporcji i estetyki. Projekt szczególnie zwraca uwagę na atrakcyjny wygląd zewnętrzny, proporcjonalność bryły budynku, optymalne doświetlenie oraz funkcjonalne rozplanowanie pomieszczeń, przy jednoczesnym prostym konstrukcji i zwartości bryły domu.
Projekty domów jednorodzinnych























