Darlena - wygodny dom z dużym garażem na wąską działkę
Dom Darlena to idealna propozycja dla osób, które poszukują wygodnego i funkcjonalnego domu na wąską działkę. Dom wyróżnia się nowoczesnym designem i elegancką formą.
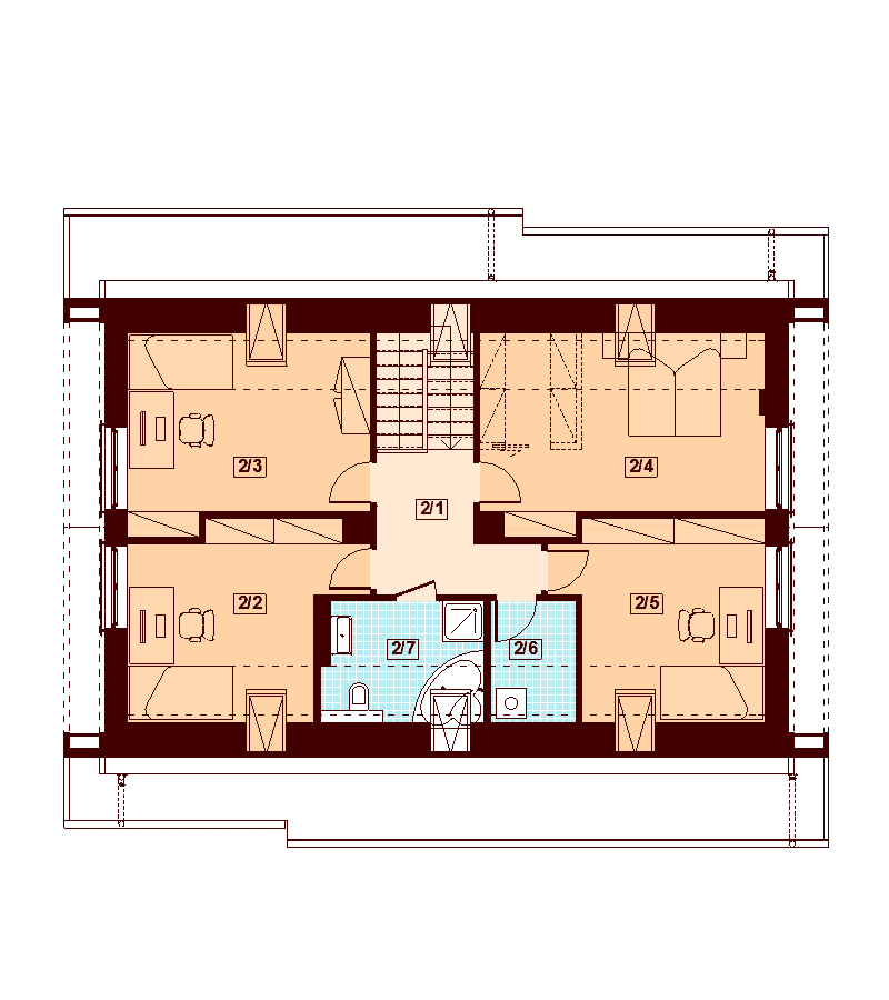
Projekt ma wygodne poddasze i bardzo ergonomiczny układ parteru.
Dom Darlena charakteryzuje się nowoczesną bryłą o prostych, ale eleganckich liniach. Elewacja została wykończona w jasnych kolorach, co nadaje jej lekkości i świeżości.
Funkcjonalność:
Dom został zaprojektowany z myślą o komforcie użytkowania. Strefa dzienna jest przestronna i otwarta, co sprzyja wspólnemu spędzaniu czasu. Na poddaszu znajdują się cztery wygodne pokoje, w tym przestronna sypialnia rodziców.
Rozkład pomieszczeń
Na parterze domu znajduje się przestronna strefa dzienna, składająca się z kuchni, jadalni i salonu. Kuchnia jest jasna i funkcjonalna, z dużym blatem roboczym i wygodnym miejscem do przechowywania. Jadalnia jest połączona z salonem, dzięki czemu wnętrze jest bardziej przestronne i jasne. Salon jest duży i komfortowy, z dużymi przeszkleniami, które zapewniają dostęp naturalnego światła.
Na parterze znajduje się również pokój gościnny lub gabinet, łazienka oraz garaż.
Na poddaszu znajdują się cztery wygodne pokoje, w tym przestronna sypialnia rodziców. W sypialni rodziców istnieje możliwość wydzielenia osobnej garderoby. W środkowej części poddasza znajduje się funkcjonalna łazienka z wanną i kabiną prysznicową oraz dodatkowe pomieszczenie - pralnia/suszarnia.
Zalety projektu:
- Elegancki design
- Przestronne wnętrze
- Funkcjonalny rozkład pomieszczeń
- Idealny na wąską działkę
- Oszczędny w budowie
Podsumowując, dom Darlena to idealna propozycja dla rodzin, które poszukują nowoczesnego, funkcjonalnego i wygodnego domu na wąską działkę. Dom wyróżnia się eleganckim designem i przestronnym wnętrzem, które zapewnia komfort i wygodę dla wszystkich domowników.
Projekty domów jednorodzinnych




















