Projekt Terrier 7 to doskonały projekt domu, który łączy w sobie nowoczesne rozwiązania z funkcjonalnością i możliwościami adaptacyjnymi. Perełka projektowa parterowy dom Terrier 7 bez garażu to idealne rozwiązanie ekonomicznego domu.
Wnętrze tego domu zostało perfekcyjnie podzielone na trzy strefy: dzienną, nocną i gospodarczą, zapewniając optymalną organizację przestrzeni. W strefie dzienną znajduje się przestronna kuchnia, która harmonijnie łączy się z rozległym pokojem dziennym, wyposażonym w przytulny kominek i wyjście na częściowo zadaszony taras. Na przeciwnym końcu znajduje się część prywatna, składająca się z łazienki oraz trzech przytulnych pokoi. Jeden z pokoi sypialnych został wyposażony w przestronną garderobę, która w przypadku adaptacji może zostać przekształcona w dodatkową łazienkę, dostępną zarówno z pokoju, jak i z ogólnego korytarza.
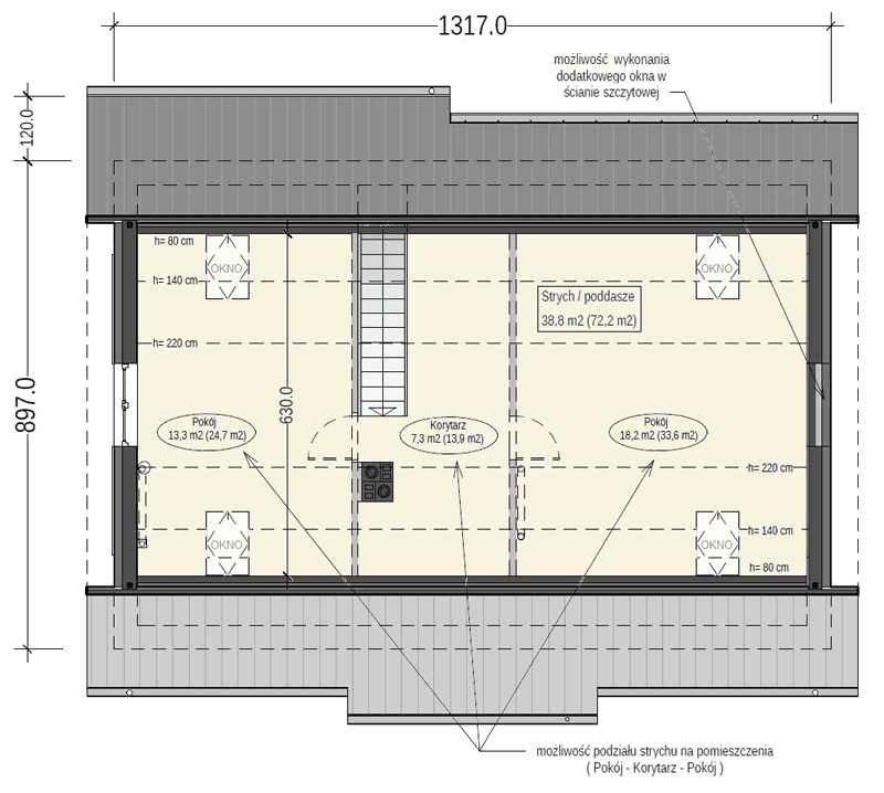
W salonie znajdują się również drewniane schody prowadzące na poddasze, które może zostać zaadaptowane na cele mieszkalne. Poddasze można podzielić na dwa duże pokoje, korytarz lub dodatkową garderobę, co zapewnia swobodę aranżacji przestrzeni. Dach o prostym układzie krokwiowo-jętkowym, bez potrzeby podparcia pośredniego, umożliwia elastyczne zagospodarowanie pomieszczeń na poddaszu.
Projekt uwzględnia również pomieszczenie kotłowni, gdzie można zainstalować kocioł na paliwo stałe, takie jak pellet, lub nowoczesną pompę ciepła typu "powietrze-woda"
Terrier 7 to doskonale zaprojektowany projekt parterowego domu bez garażu, który oferuje nie tylko funkcjonalność, ale także możliwość adaptacji poddasza na cele mieszkalne. Jego zwarta bryła, oparta na prostokątnym rzucie, charakteryzuje się symetryczną fasadą frontową i eleganckim wejściem, podkreślonym prostym zadaszeniem. Dwuspadowy dach o tradycyjnej konstrukcji drewnianej, z kalenicą równoległą do elewacji frontowej, dodaje mu uroku i klasy, a przede wszystkim generuje oszczędności.
"Dobre projekty powstają w doświadczonych pracowniach. Projektujemy domy już od 15 lat"















