Terrier MAX z garażem - funkcjonalny i tani dom parterowy
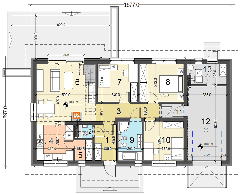
Terrier MAX z garażem to projekt domu parterowego, który idealnie sprawdzi się dla osób poszukujących funkcjonalnego i taniego rozwiązania. Dom ma powierzchnię użytkową 97 m² i jest przeznaczony dla rodziny 4-osobowej.
Parterowy dom i jego funkcjonalność
Wnętrze domu zostało zaprojektowane z myślą o maksymalnej funkcjonalności. Klasyczny podział na strefy dzienną, nocną i gospodarczą zapewnia idealne rozplanowanie przestrzeni.
- Strefa dzienna składa się z dużej kuchni z wygodną spiżarnią oraz rozległego salonu z kominkiem. Kuchnia jest idealnym miejscem do gotowania i spędzania czasu z rodziną, a salon to wymarzone miejsce do relaksu i spotkań z bliskimi.
- Strefa nocna składa się z trzech przytulnych sypialni, które zapewniają prywatność i wygodne miejsce do spania.
- Strefa gospodarcza obejmuje garaż na jeden samochód oraz pomieszczenie gospodarcze.
Walory projektu:
- Powierzchnia użytkowa 97 m² zapewnia komfortowe warunki dla rodziny 4-osobowej.
- Klasyczny podział na strefy dzienną, nocną i gospodarczą pozwala na wygodne rozplanowanie przestrzeni.
- Duża kuchnia z wygodną spiżarnią to wymarzone miejsce do gotowania i spędzania czasu z rodziną.
- Rozległy salon z kominkiem to idealne miejsce do relaksu i spotkań z bliskimi.
- Trzy przytulne sypialnie zapewniają prywatność i wygodne miejsce do spania.
- Garaż na jeden samochód to wygoda i bezpieczeństwo.
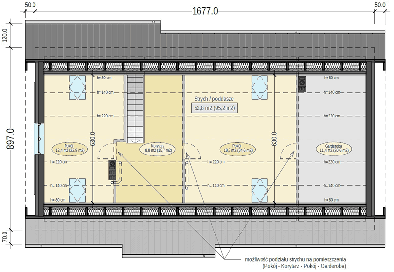
- Strych użytkowy może być wykorzystany na dodatkowe pokoje, garderobę czy korytarz.
- Prosta bryła i tradycyjna dachówka ceramiczna nadają domu elegancki wygląd.
Opinie domowników:
- "Jesteśmy bardzo zadowoleni z projektu domu Terrier MAX. Dom jest wspaniały i ekstra prosty w budowie. Dzięki temu udało nam się zaoszczędzić sporo pieniędzy. Wnętrze domu jest bardzo funkcjonalne i spełnia nasze potrzeby. Mamy przestronną kuchnię, duży salon z wyjściem na taras i trzy przytulne sypialnie. Dodatkowo, dom posiada garaż jednostanowiskowy, który jest bardzo wygodny. Polecamy ten projekt wszystkim, którzy szukają funkcjonalnego i taniego domu." - Maks
- "Terrier MAX to dom, który zapewnia komfort i spełnia nasze potrzeby. Kuchnia jest bardzo przestronna i dobrze wyposażona. Salon jest duży i jasny, a wyjście na taras to idealne miejsce do relaksu. Sypialnie są przytulne i ustawne. Dom jest bardzo dobrze zaprojektowany i idealnie wpasował się w nasze otoczenie. Jesteśmy bardzo zadowoleni z naszego wyboru." - Ala i rodzinka
"Dobre projekty powstają w doświadczonych pracowniach. Projektujemy domy już od 15 lat"















