Projekt domu Pinczer 6 to doskonałe połączenie niskich kosztów budowy, klasycznego stylu i funkcjonalnego rozkładu pomieszczeń, które spełnią potrzeby każdej rodziny.
Ten dom z poddaszem został zaprojektowany z myślą o osiągnięciu niskich kosztów budowy, jednocześnie oferując funkcjonalność i atrakcyjny wygląd.
Zaprojektowany specjalnie dla 4-5 osobowej rodziny poszukującej domu o klasycznym stylu, projekt domu Pinczer 6 jest idealnym rozwiązaniem.
Budynek posiada dwuspadowy dach o prostym drewnianym wykonaniu, z kalenicą równoległą do elewacji frontowej. Dodatkowo, do projektu dołączony jest jednostanowiskowy garaż, znajdujący się na parterze, z użytkowym strychem na poddaszu.
Wnętrza tego projektu są funkcjonalne i doskonale oświetlone. Na parterze znajduje się strefa dzienna, która składa się z przestronnego salonu połączonego z kuchnią i jadalnią. Dodatkowo, został zaprojektowany taras, który stanowi idealne miejsce do letnich posiłków i relaksu. Na parterze znajduje się również dodatkowe pomieszczenie mieszkalne, które może pełnić rolę pokoju gościnnego lub pracowni.
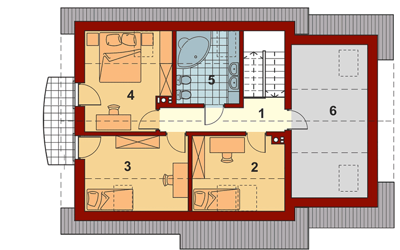
Na poddaszu znajduje się w pełni rozkładowa strefa nocna. Pokoje na poddaszu mają optymalną wysokość ścianek kolankowych, co zapewnia komfortową przestrzeń mieszkalną, jednocześnie zachowując idealne proporcje bryły budynku.
"Dobre projekty powstają w doświadczonych pracowniach. Projektujemy domy już od 15 lat"















