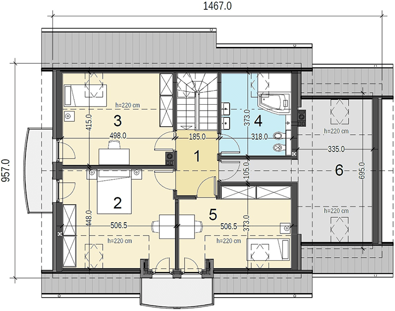
Projekt Sowa 10 to projekt domu, w którym pomieszczenia na poddaszu zostały starannie zaprojektowane, aby zapewnić optymalne wykorzystanie przestrzeni oraz zachowanie idealnych proporcji bryły obiektu. Na poddaszu znajduje się korytarz o powierzchni 5,3 m², który zapewnia łatwy dostęp do pozostałych pomieszczeń.
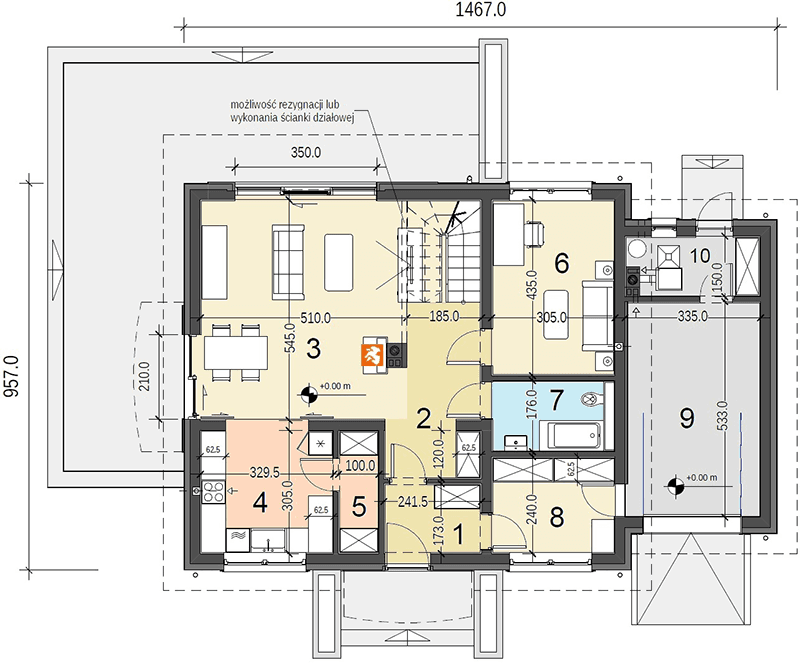
Na parterze, aby zachować idealne proporcje bryły budynku, znajduje się wiatrołap o powierzchni 4 m² oraz korytarz o powierzchni 8,2 m², który prowadzi do pozostałych pomieszczeń. Przestronny pokój dzienny z jadalnią o powierzchni 27,2 m² tworzy serce domu, zapewniając przestrzeń do spotkań rodzinnych i relaksu. Kuchnia o powierzchni 10 m² została zaprojektowana z myślą o efektywnym korzystaniu z przestrzeni i przygotowywaniu posiłków. Spiżarnia o powierzchni 2,9 m² stanowi dodatkową przestrzeń do przechowywania żywności i innych potrzebnych rzeczy.
Dodatkowo, na parterze znajduje się pokój o powierzchni 12,9 m², który może służyć jako sypialnia gościnna lub pracownia. Łazienka o powierzchni 5,1 m² jest dobrze wyposażona i zapewnia funkcjonalność oraz komfort. Garderoba o powierzchni 7,1 m² umożliwia przechowywanie odzieży i akcesoriów, zapewniając porządek i organizację. Garaż jednostanowiskowy o powierzchni 17,2 m² stanowi praktyczne rozwiązanie dla przechowywania samochodu i innych narzędzi
Dodatkowo, na poddaszu znajduje się kolejny pokój o powierzchni 12,6 m², który można dostosować do indywidualnych potrzeb mieszkańców. Warto zauważyć, że strych o powierzchni 16,3 m² stanowi dodatkową przestrzeń, która może być wykorzystana jako dodatkowe miejsce do przechowywania lub przestrzeń rekreacyjna.
Sowa 10 to unikatowy projekt domu, który został stworzony z myślą o 4- lub 5-osobowej rodzinie. Jego kompaktowa i zwarta bryła jest ozdobiona dwuspadowym dachem o prostej konstrukcji drewnianej. Architektura tego domu wyróżnia się lukarną i balkonem nad wejściem głównym, a także dobudowanym jednostanowiskowym garażem.
"Dobre projekty powstają w doświadczonych pracowniach. Projektujemy domy już od 15 lat"















