Pinczer 4 z garażem XL to wygodny dom, który został zaprojektowany dla potrzeb 4-ro lub 5-cio osobowej rodziny, pragnącej cieszyć się klasycznym stylem. Budynek posiada wyjątkową, ale tradycyjną bryłę, z przekrytym dwuspadowym dachem o prostej konstrukcji drewnianej, gdzie kalenica równolegle biegnie do elewacji frontowej.
Pinczer 4 z garażem XL prezentuje się niezwykle wyjątkowo, oferując funkcjonalność i tradycyjny urok. Jego przemyślana architektura, w połączeniu z dużym garażem, nadaje mu unikalny charakter. To idealne rozwiązanie dla rodzin poszukujących komfortowego domu z poddaszem.
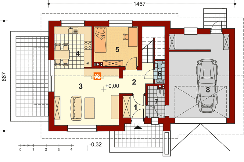
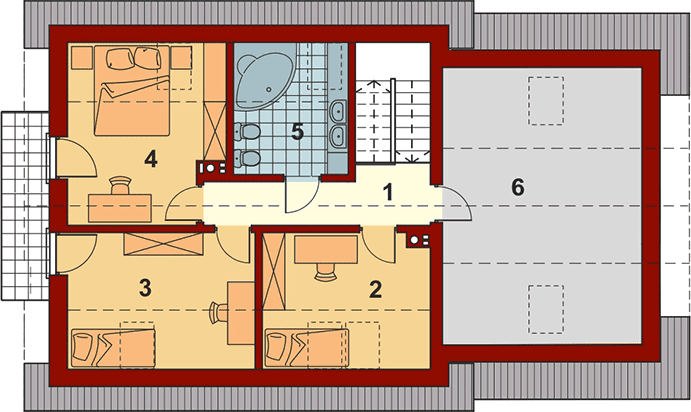
Wnętrza Pinczera 4 są funkcjonalne i doskonale doświetlone. Na parterze znajduje się strefa dzienna, składająca się z przestronnego salonu, kuchni i jadalni, które harmonijnie łączą się z ogrodem. Do projektu zostało również dodane pomieszczenie mieszkalne na parterze, które może pełnić rolę pokoju gościnnego lub pracowni. Pełni rozkładowa strefa nocna znajduje się na poddaszu. Projekt jest tani w budowie, optymalny użytkowo, dostosowany do standardowych rozwiązań konstrukcyjnych
"Dobre projekty powstają w doświadczonych pracowniach. Projektujemy domy już od 15 lat"















