Projekt gotowy Pinczer 7 to harmonijne połączenie tradycyjnej formy, współczesnej estetyki i regionalnych materiałów. Porjekt należy do kolekcji lubianych i sprawdzonych proejktów domów. Pomimo niewielkich rozmiarów, ten elegancki dom o ponadczasowej architekturze doskonale wkomponuje się w niemal każdy krajobraz.
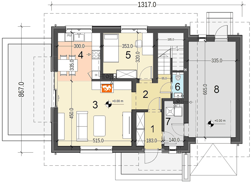
Wnętrza Pinczera 7 są funkcjonalne i doskonale doświetlone. Na parterze znajduje się strefa dzienna, z przestronnym salonem, kuchnią i jadalnią, otwierającymi się na ogród. Projekt uwzględnia również pomieszczenie mieszkalne na parterze, które może pełnić funkcję pokoju gościnnego lub pracowni. Pełni rozkładowa strefa nocna mieści się na poddaszu. Optymalna wysokość ścianki kolankowej na poddaszu pozwala uzyskać komfortową powierzchnię mieszkalną w pokojach, jednocześnie zachowując proporcje bryły obiektu.
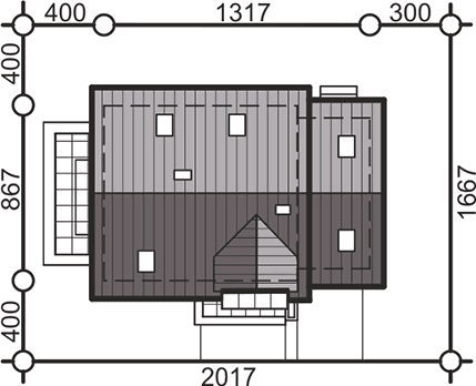
Projekt Pinczer 7 to dom parterowy z poddaszem, cechujący się wysoką ścianką kolankową. Poszukująca domu o klasycznej stylistyce rodzina będzie zadowolona z tego rozwiązania. Dwuspadowy dach o prostej konstrukcji drewnianej, z kalenicą równoległą do elewacji frontowej, harmonijnie pokrywa budynek. Dodatkowo, projekt przewiduje jednostanowiskowy garaż w poziomie parteru, z użytkowym strychem na poddaszu.
"Dobre projekty powstają w doświadczonych pracowniach. Projektujemy domy już od 15 lat"















