Projekt domu Baset 3 to wyjątkowy projekt, stworzony z myślą o rodzinie składającej się z 4 lub 5 osób. Ten kompaktowy, zwarty budynek został zaprojektowany z dbałością o każdy detal, oferując praktyczne i doskonale doświetlone wnętrza.
Główna część budynku jest pokryta dwuspadowym dachem o prostej konstrukcji drewnianej, a kalenica jest umieszczona prostopadle do elewacji frontowej. Nad garażem zaprojektowano dach półpłaski, który również wykonany jest z drewna. To harmonijne połączenie konstrukcji dachowych dodaje uroku i charakteru całej budowli.
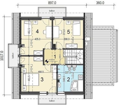
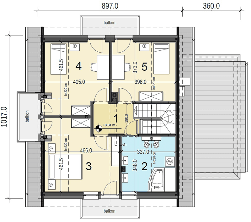
Wnętrza zostały zaprojektowane w sposób funkcjonalny, z dbałością o odpowiednie doświetlenie. Na parterze znajduje się strefa dzienna, która obejmuje przestronny salon z jadalnią i kominkiem. Wykusz, który stanowi integralną część tego obszaru, idealnie nadaje się na rodzinne posiłki, tworząc przytulne miejsce do wspólnego spożywania posiłków.
Porjekt z poddaszem Baset 3 z garażem to również połączenie tradycyjnej formy, nowoczesnej estetyki i regionalnych materiałów. Wykorzystano okładzinę kamienną, grafitową dachówkę ceramiczną oraz naturalne drewno, które nadają temu domowi ponadczasowego charakteru. Jego architektura jest uniwersalna i harmonijnie wkomponuje się w każdy krajobraz.
To miejsce, gdzie funkcjonalność, estetyka i wygoda spotykają się w doskonałym połączeniu, tworząc idealne środowisko dla rodzinnej harmonii i komfortowego życia. Dom Baste 3 zaprasza do odkrywania nowych wymiarów domowego ciepła i spokoju.
"Dobre projekty powstają w doświadczonych pracowniach. Projektujemy domy już od 15 lat"




















