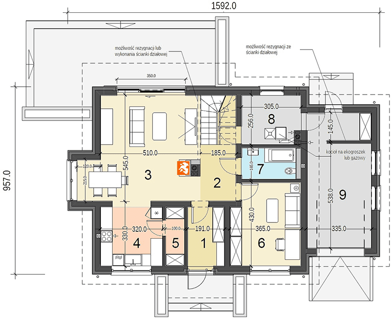
Projekt domu Sowa 4 z garażem dwustanowiskowym to dom tani w budowie, bardzo funkcjonalny, z optymalnym programem użytkowym.
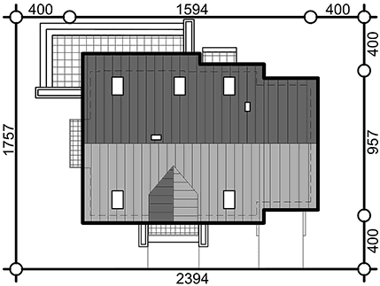
Charakterystyczną cechą Sowy 4 jest dwuspadowy dach o prostej konstrukcji drewnianej, który harmonijnie łączy się z bryłą domu. Dodatkowo, dom został wyposażony w lukarnę i balkon nad wejściem głównym, a także posiada dobudowany garaż jednostanowiskowy.
Wnętrze tego domu zostało funkcjonalnie podzielone na strefę dzienną na parterze oraz w pełni rozkładową strefę nocną na poddaszu. Przestronny salon, który otwiera się na ogród, został dodatkowo powiększony prostym wykuszem, który idealnie nadaje się na rodzinne posiłki lub relaksujące chwile. Optymalna wysokość ścianek kolankowych na poddaszu pozwala uzyskać komfortową powierzchnię mieszkalną i zachować proporcje bryły domu w idealnym równowadze.
Sowa 4 z garażem to gotowy projekt domu, który oferuje funkcjonalność, estetykę i komfort dla każdej rodziny. Jego starannie zaplanowane przestrzenie i wysoka jakość wykonania zapewniają nie tylko atrakcyjny wygląd, ale również trwałość i przyjemność z użytkowania. Dzięki swojej wyjątkowej charakterystyce, Sowa 4 stanowi idealne miejsce do tworzenia pięknych wspomnień i cieszenia się życiem rodzinny.
"Dobre projekty powstają w doświadczonych pracowniach. Projektujemy domy już od 15 lat"















