Projekt domu Sowa z garażem jednostanowiskowym to projekt domu stworzony specjalnie dla 4-5 osobowej rodziny, która poszukuje klasycznego, lecz niebanalnego wzoru architektonicznego.
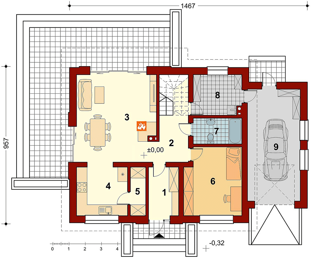
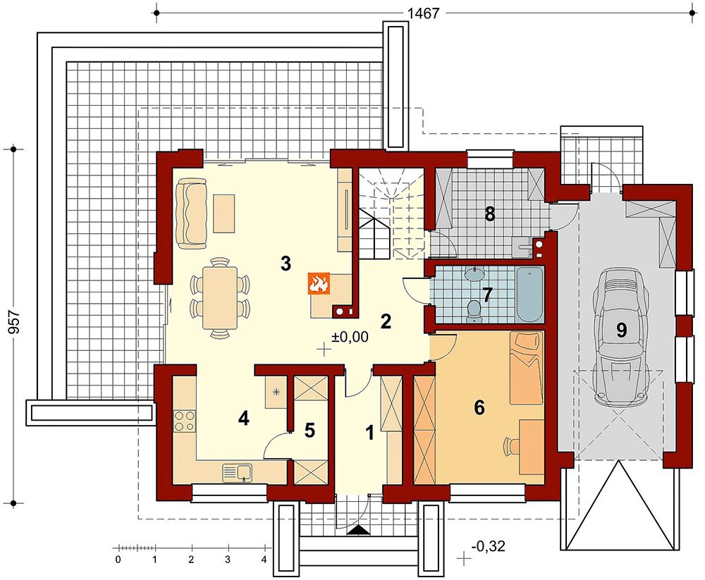
Wnętrze Sowy zostało starannie zaplanowane, aby zapewnić optymalne doświetlenie i komfort użytkowania. Duże okna rozświetlają strefę dziennej, która znajduje się na parterze i otwiera się na urokliwy ogród. To idealne miejsce do spędzania czasu z rodziną i przyjaciółmi.
Poddasze domu zostało zaprojektowane jako strefa nocna, składająca się z trzech podobnej wielkości pokoi oraz łazienki. Dzięki temu, każdy członek rodziny może cieszyć się prywatną przestrzenią do wypoczynku i relaksu. Symetryczną fasadę Sowy przełamuje garaż na jedno miejsce postojowe, który został inteligentnie połączony z domem, umożliwiając bezpośredni dostęp do niego, bez konieczności wychodzenia na zewnątrz.
Projekt Sowy skupia się na minimalizowaniu przestrzeni komunikacyjnych, co pozwoliło na stworzenie przestronnych i wygodnych pomieszczeń, które spełnią oczekiwania każdej rodziny. Funkcjonalność domu i komfort użytkownika są tu priorytetem.
"Dobre projekty powstają w doświadczonych pracowniach. Projektujemy domy już od 15 lat"




















